E & G IMMOBILIEN > COMMERCIAL PROPERTY > Exklusiver Neubau am Killesberg
Außenbild
Impressionen
Impressionen
Impressionen
Impressionen
Impressionen
Impressionen
Impressionen
Plan Mietfläche
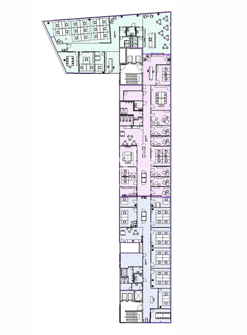
Grundrissvorschlag Gesamtfläche
Grundrissvorschlag West
Grundrissvorschlag West II
Grundrissvorschlag Mitte
Grundrissvorschlag Ost
Innenhof
Außenbild
Impressionen
Impressionen
Impressionen
Impressionen
Impressionen
Impressionen
Impressionen
Plan Mietfläche
Grundrissvorschlag Gesamtfläche
Grundrissvorschlag West
Grundrissvorschlag West II
Grundrissvorschlag Mitte
Grundrissvorschlag Ost
Innenhof

Exklusiver Neubau am Killesberg

Stuttgart

19,50
Rent € per m²
428
Fläche teilbar ab (m²)

Das "MAY OFFICE", aus dem Jahr 2021 lässt keine Wünsche offen Durch die LEED Zertifizierung erfüllt der Bau alle Anforderungen an ein nachhaltiges Gewerbeobjekt. Die hinterlüftete Vorhangfassade mit Faserzemetplatten gilt als äußerst witterungsfest und langlebig In Verbindung mit dem ca 25 Glasanteil, inkl elektrisch betriebener Raffstoreanlage, unterstreichen die Fassade die moderne Optik des Gebäudes. Das Objekt verfügt über ein Blockheizkraftwerk zur Grundlastdeckung, sowie zusätzlich einem Gasbrennwertkessel zur Spitzenlastdeckung Die mechanische Be und Entlüftung in Verbindung mit Heiz und Kühldecken ermöglichen angenehme Temperierungen zu jeder Jahreszeit. Die beiden einladenden, rollstuhlgerechten Eingangsbereiche verfügen über Aufzugsanlagen in alle Etagen. In der hauseigenen Tiefgarage stehen PKW Stellplätze teilweise mit E Ladesäulen zur Verfügung. Darüber hinaus verfügt das Gebäude über 56 abschließbare Fahrradstellplätze sowie Duschen und Umkleiden zur allgemeinen Nutzung. Im Objekt aktuell verfügbare Flächen: 2. OG - 428 m² 2. OG - 509 m² 2. OG - 437 m²


Eckdaten

OBJECT TYPE
Büro/Praxis
ORT
Stuttgart
BÜRO- /PRAXIS­FLÄCHE IN M²
1.374
FLÄCHE TEILBAR AB (M²)
428
BAUJAHR
2021
PROVISION
provisionsfrei
OBJEKTNUMMER
EuG10140

LAGEKRITERIEN

ENTFERNUNG NÄCHSTER HAUPTBAHNHOF
3.6 KM
ENTFERNUNG NÄCHSTE AUTOBAHN
9 KM
ENTFERNUNG ZUM ZENTRUM
4.4 KM
ENTFERNUNG NÄCHSTER FLUGHAFEN
17.3 KM
Ausstattung / Objektdetails

Die Fläche besticht durch eine hochwertige Ausstattung:

  • Neubau
  • Hochwertige Architektur
  • 184 Tiefgaragenplätze vorhanden
  • Innenhof
  • Moderne Ausstattung
  • Gute Infrastruktur
  • Kühlung
  • Raumaufteilung nach Mieterwunsch
  • Hohlraumboden
Please allow cookies,
to display a map from Google Maps.

Contact

SPEAK TO US!

This might also be of interest to you

Find Your Personal Property
Simple, fast and discrete – our property search