E & G IMMOBILIEN > COMMERCIAL PROPERTY > Büroflächen im Gleiskarree Ditzingen
Titelbild
Bauteil 4
Bild2
Lageplan
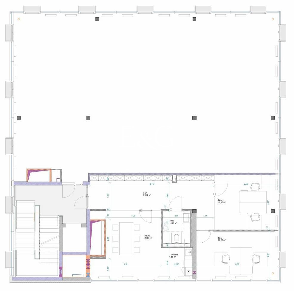
Grundriss 1.OG
Grundriss 2.OG
Bild
Titelbild
Bauteil 4
Bild2
Lageplan
Grundriss 1.OG
Grundriss 2.OG
Bild

Büroflächen im Gleiskarree Ditzingen

Ditzingen

14,90
Rent € per m²
110
Fläche teilbar ab (m²)

Die zur Verfügung stehenden Büroflächen befinden sich direkt am Bahnhof in Ditzingen. Ditzingen gehört mit 24.000 Einwohnern und vielen leistungsfähigen Unternehmen wie Trumpf, GU, Reclam, Euronics, Thales (seit 2014 mit ca. 1.800 Beschäftigten) zu den wichtigsten 5 Städten im Landkreis Ludwigsburg. Es grenzt nordwestlich an Stuttgart und liegt direkt an der A81 (Heilbronn/Singen) bzw. in der unmittelbaren Nähe zum Autobahnkreuz Leonberg. Somit ist auch eine kurze Verbindung zur A8 (München/Karlsruhe) gewährleistet. Das Objekt befindet sich direkt am S-Bahnhof Ditzingen, der einen direkten Anschluss nach Stuttgart gewährleistet. Geschäfte des täglichen Bedarfs, Hotels und Restaurants befinden sich in näherer Umgebung bzw. sind Teil des neu entstehenden Bahnhofareals. Das Zentrum von Ditzingen ist nur wenige Gehminuten entfernt.


Eckdaten

OBJECT TYPE
Büro/Praxis
ORT
Ditzingen
BÜRO- /PRAXIS­FLÄCHE IN M²
254
FLÄCHE TEILBAR AB (M²)
110
PROVISION
provisionsfrei
OBJEKTNUMMER
EuG10517

LAGEKRITERIEN

ENTFERNUNG NÄCHSTE AUTOBAHN
1.2 KM
ENTFERNUNG NÄCHSTER FLUGHAFEN
26.5 KM
ENTFERNUNG NÄCHSTER BAHNHOF
3.6 KM
Ausstattung / Objektdetails

Die Fläche besticht durch eine großzügige Ausstattung:

  • Teppichboden
  • WC Bodenfliesen Feinsteinzeug
  • Hohlraumböden/Bodentanks mit Revisionsöffnungen
  • Elektrisch betriebener Sonnenschutz mit Windwächter
  • Heizkörper mit Thermostat (je Raum)
  • Teeküche und Anschlüsse (Zu- und Abwasser, Durchlauferhitzer)
  • Spüle, Kühlschrank und Geschirrspülmaschine
  • Telefon- und EDV-Anschlüsse
  • Lichte Raumhöhe Bürobereiche ca. 2,90 m
  • Lichte Raumhöhe Flurbereiche und Nebenräume 2,50 m
Please allow cookies,
to display a map from Google Maps.

Contact

SPEAK TO US!

This might also be of interest to you

Find Your Personal Property
Simple, fast and discrete – our property search