E & G IMMOBILIEN > COMMERCIAL PROPERTY > BÜROFLÄCHE IN ZENTRALER LAGE
Außenansicht
Büro
Büro
Büro
Flur
Küche
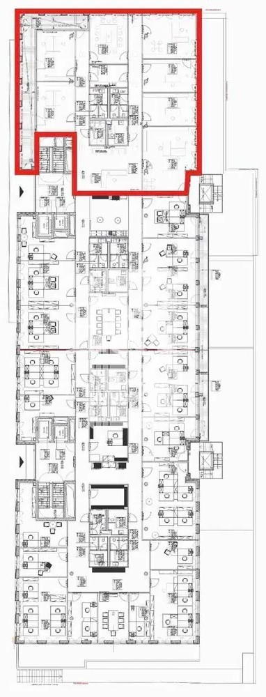
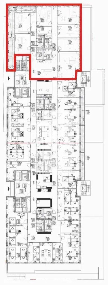
3. Obergeschoss
Ansicht
Außenansicht
Büro
Büro
Büro
Flur
Küche
3. Obergeschoss
Ansicht

BÜROFLÄCHE IN ZENTRALER LAGE

Stuttgart

25,00
Rent € per m²
436
Fläche teilbar ab (m²)

Die Rosenberghöfe sind ein modernes Büroensemble mit klarer architektonischer Struktur und repräsentativem Erscheinungsbild. Das Objekt vereint funktionale Grundrisskonzepte mit zeitgemäßer Ausstattung und bietet ideale Voraussetzungen für effiziente Arbeitswelten. Die Anordnung der Gebäude um begrünte Innenhöfe schafft ein ruhiges, angenehmes Arbeitsumfeld mit hoher Aufenthaltsqualität. Großzügige Fensterflächen sorgen für eine sehr gute natürliche Belichtung der Büroflächen. Die Einheiten sind flexibel teilbar und ermöglichen sowohl klassische Zellenbüros als auch offene Open-Space-Konzepte oder hybride Arbeitsformen.


Eckdaten

OBJECT TYPE
Büro/Praxis
ORT
Stuttgart
BÜRO- /PRAXIS­FLÄCHE IN M²
436
FLÄCHE TEILBAR AB (M²)
436
BAUJAHR
2014
PROVISION
provisionsfrei
OBJEKTNUMMER
EuG11086

LAGEKRITERIEN

ENTFERNUNG NÄCHSTER HAUPTBAHNHOF
1.2 KM
ENTFERNUNG NÄCHSTE AUTOBAHN
11.7 KM
ENTFERNUNG NÄCHSTER FLUGHAFEN
14.5 KM
Ausstattung / Objektdetails
  • Repräsentativer Eingangsbereich
  • Hochwertiger, neuer Teppichboden
  • Dachterrasse mit wunderschönem Ausblick auf den - Fernsehturm
  • Personenaufzug
  • Voll ausgestatte Teeküche
  • Kühlung
  • LED-Deckenleuchten
  • Cat 7 Verkabelung
  • Hochwertige Glastrennwände
Please allow cookies,
to display a map from Google Maps.

Contact

SPEAK TO US!

This might also be of interest to you

Find Your Personal Property
Simple, fast and discrete – our property search