E & G IMMOBILIEN > COMMERCIAL PROPERTY > SEHR GUT ANGEBUNDENES BÜROGEBÄUDE
Außenansicht
Treppenhaus
Flur
Empfang
Luftbild
Innenhof
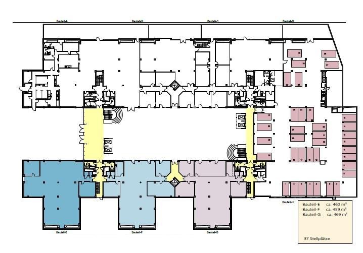
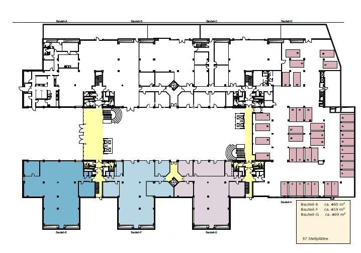
Sockelgeschoss
1. OG
EG Bauteil H
Ansicht
Außenansicht
Treppenhaus
Flur
Empfang
Luftbild
Innenhof
Sockelgeschoss
1. OG
EG Bauteil H
Ansicht

SEHR GUT ANGEBUNDENES BÜROGEBÄUDE

Böblingen

11,90
Rent € per m²
321
Fläche teilbar ab (m²)

Das 6-geschossige Gebäude bietet eine großzügige Raumhöhe von ca. 3 Metern im Bürobereich und ermöglicht eine flexible Raumaufteilung, die sich an die individuellen Bedürfnisse der Mieter anpassen lässt. Ein besonderer Highlight ist der begrünte Innenhof mit Glasdach, der für eine angenehme Atmosphäre sorgt und als Rückzugsort dient. Zusätzlich sind Balkone in Richtung Innenhof vorhanden, die den Mietern weiteren Raum zur Erholung bieten. Im Objekt aktuell verfügbare Flächen: SG - 1.388 m² (teilbar ab 459 m²) EG - 321 m² 1. OG - 1.894 m² (teilbar ab 473 m²)


Eckdaten

OBJECT TYPE
Büro/Praxis
ORT
Böblingen
BÜRO- /PRAXIS­FLÄCHE IN M²
3.603
FLÄCHE TEILBAR AB (M²)
321
PROVISION
provisionsfrei
OBJEKTNUMMER
EuG11235

LAGEKRITERIEN

ENTFERNUNG NÄCHSTER HAUPTBAHNHOF
25.2 KM
ENTFERNUNG NÄCHSTE AUTOBAHN
2.4 KM
ENTFERNUNG NÄCHSTER FLUGHAFEN
23.5 KM
ENTFERNUNG NÄCHSTE BUSHALTESTELLE
0.19 KM
Ausstattung / Objektdetails

Die Flächen verfügen über großzügige Ausstattung:

  • Außenliegender Sonnenschutz
  • Hohlraum- und Doppelböden
  • Barrierefreier Zugang
  • 6 Personenaufzüge
  • Zahlreiche PKW-Stellplätze in der Tiefgarage und im Parkhaus
  • Kundenparkplätze
  • Kantine
  • Klimatisierte Einheiten
Please allow cookies,
to display a map from Google Maps.

Contact

SPEAK TO US!

This might also be of interest to you

Find Your Personal Property
Simple, fast and discrete – our property search