E & G IMMOBILIEN > COMMERCIAL PROPERTY > DOC - Degerloch Office Center: Der neue Top Gewerbestandort
Außenbild
Bürofläche
Open Space Büro
Mixed Use
Fitness
Gastro
Bürofläche
Stacking Plan
Erdgeschoss
1. Obergeschoss
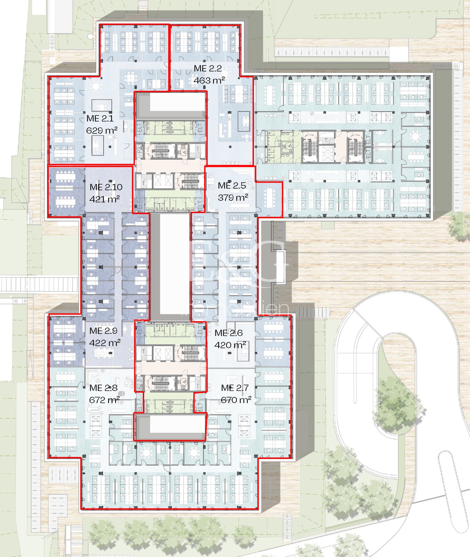
2. Obergeschoss
Highlights
Außenbild
Bürofläche
Open Space Büro
Mixed Use
Fitness
Gastro
Bürofläche
Stacking Plan
Erdgeschoss
1. Obergeschoss
2. Obergeschoss
Highlights

DOC - Degerloch Office Center: Der neue Top Gewerbestandort

Stuttgart

23,00
Rent € per m²

Das DOC – Degerloch Office Center überzeugt durch eine repräsentative, moderne und nachhaltige Architektur. Bereits die aufwendig gestaltete Fassade unterstreicht den hohen architektonischen Anspruch und verleiht dem Neubau ein unverwechselbares Erscheinungsbild. In zentraler und exponierter Lage am Südrand der Stuttgarter Innenstadt ist das DOC Teil eines Bürocampus mit Tiefgarage und bietet eine ganzheitliche Versorgungsinfrastruktur bestehend aus Gastronomie, Fitness sowie medizinischen Einrichtungen. Durch die hervorragende Anbindung an den öffentlichen Nahverkehr ist man in nur zehn Minuten in der Stuttgarter City. Als fünfgeschossiges Multi-Tenant-Gebäude bietet das DOC Unternehmen unterschiedlichster Größe flexible Raumkonzepte. Von kleineren Flächen ab ca. 200 m² im Erdgeschoss bis hin zu rund 5.300 m² in den oberen Etagen ist hier alles möglich. Dank bodentiefer Fenster sind die Bürobereiche lichtdurchflutet und schaffen eine angenehme Arbeitsatmosphäre. Die Flächen können individuell als klassische Zellenbüros, Kombi- oder Open Space Offices gestaltet werden. Das Thema Nachhaltigkeit spielt sowohl in der Planung als auch im Betrieb des DOC eine zentrale Rolle. So wird der Campus klimafreundlich errichtet, strebt eine DGNB Gold Zertifizierung an und erfüllt den KfW-55-Effizienzhaus-Standard. Damit ist das DOC – Degerloch Office Center bestens gerüstet für die Anforderungen moderner Unternehmen und vereint Repräsentativität, Nachhaltigkeit sowie eine erstklassige technische Infrastruktur in idealer Weise.


Eckdaten

OBJECT TYPE
Büro/Praxis
ORT
Stuttgart
BÜRO- /PRAXIS­FLÄCHE IN M²
8.093
BAUJAHR
2023
PROVISION
provisionsfrei
OBJEKTNUMMER
EuG11667

LAGEKRITERIEN

ENTFERNUNG NÄCHSTER HAUPTBAHNHOF
5.7 KM
ENTFERNUNG NÄCHSTE AUTOBAHN
12 KM
ENTFERNUNG NÄCHSTER FLUGHAFEN
8 KM
Ausstattung / Objektdetails

Das Degerloch Office Center verfügt über eine großzügige Ausstattung:

  • Teeküche
  • EDV-Verkabelung
  • Kantine
  • Personenaufzug
  • Teeküche
  • Kernsanierter Neubau
  • Schallakkustisch wirksame Deckensegel
  • Deckenhöhe von mind. 3,80 m sorgt für ein außerordentliches Raumgefühl
  • Dachsegel mit Kühl- und Heizfunktion
  • Stellplätze in der objekteigenen Tiefgarage
  • Betriebsrestaurant direkt im Gebäude
  • Fitnessstudio direkt im Gebäude
  • Gesamtgebäude ist gem. aktuellen ökologischen und energetischen Anforderungen erstellt
  • Top modernes Gebäude aufgrund der derzeitigen Kernsanierung
  • Bürocampus mit besonderem Flair
  • Schöne Aufenthaltsbereiche im Freien
Please allow cookies,
to display a map from Google Maps.

Contact

SPEAK TO US!

This might also be of interest to you

Find Your Personal Property
Simple, fast and discrete – our property search