E & G IMMOBILIEN > COMMERCIAL PROPERTY > Moderne Büroflächen in den Salucci Höfen
Titelbild
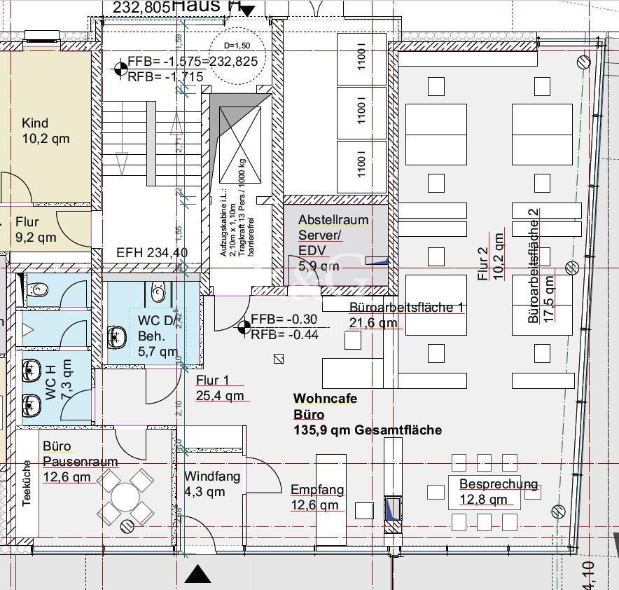
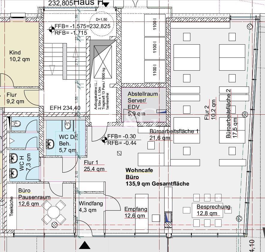
Büro EG
Büro EG
Büro EG
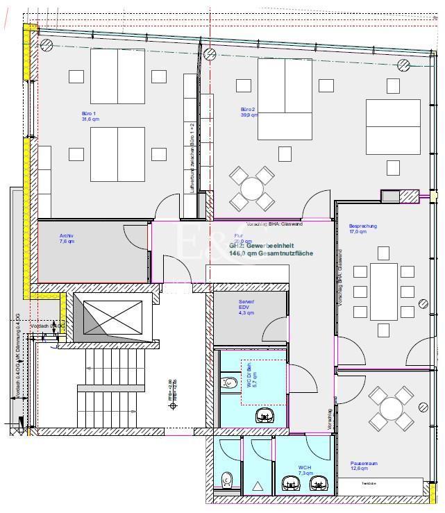
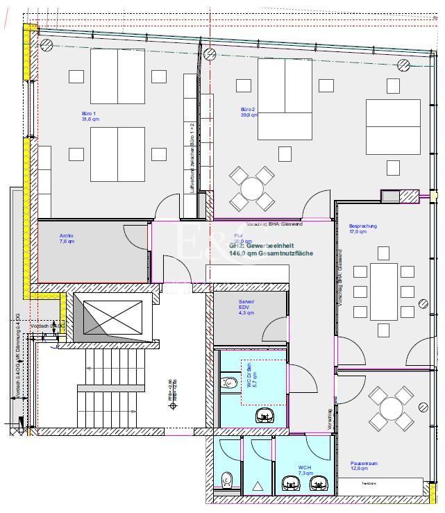
Büro 1.OG
Büro 1.OG
Büro 1.OG
Erdgeschoss
1.Obergeschoss
EINGANG
Titelbild
Büro EG
Büro EG
Büro EG
Büro 1.OG
Büro 1.OG
Büro 1.OG
Erdgeschoss
1.Obergeschoss
EINGANG

Moderne Büroflächen in den Salucci Höfen

Esslingen

12,90
Rent € per m²
134
Fläche teilbar ab (m²)

Die moderne Bürofläche in Weil, einem Vorort von Esslingen am Neckar, überzeugt durch ihre repräsentative Lage direkt an der B10 und ihre hervorragende Sichtbarkeit. Mit einer Gesamtfläche von 280 m², teilbar ab 134 m², bietet sie flexible Nutzungsmöglichkeiten. Die komplett verglaste Fassade sorgt sowohl im Erdgeschoss als auch im 1. Obergeschoss für lichtdurchflutete Räume und eine angenehme Arbeitsatmosphäre. Durch die schnelle Anbindung an die B10 ist die Stuttgarter Innenstadt zügig erreichbar. Die Bürofläche liegt in einem Industriegebiet, das von renommierten Unternehmen wie dem Mercedes-Benz Werk in Brühl und Mettingen geprägt ist. Zudem ist Ostfildern mit dem attraktiven Wohngebiet Scharnhauser Park schnell erreichbar. Eine topmoderne, helle und bestens angebundene Bürofläche in einem wirtschaftlich starken Umfeld – ideal für anspruchsvolle Unternehmen.


Eckdaten

OBJECT TYPE
Büro/Praxis
ORT
Esslingen
BÜRO- /PRAXIS­FLÄCHE IN M²
280
FLÄCHE TEILBAR AB (M²)
134
BAUJAHR
2022
PROVISION
provisionsfrei
OBJEKTNUMMER
EuG11847

LAGEKRITERIEN

ENTFERNUNG NÄCHSTER HAUPTBAHNHOF
12 KM
ENTFERNUNG NÄCHSTER FLUGHAFEN
13 KM
ENTFERNUNG NÄCHSTE BUSHALTESTELLE
0.22 KM
Ausstattung / Objektdetails

Die Fläche verfügt über folgende Ausstattung:

  • Personenaufzug
  • Dezentrale Be- und Entlüftungsanlage
  • Teppichboden / Vinylboden / Parkett
  • LED-Lampen
  • KAT7-Verkabelung über Bodentanks
  • Getrennte Sanitäranlagen
Please allow cookies,
to display a map from Google Maps.

Contact

SPEAK TO US!

This might also be of interest to you

Find Your Personal Property
Simple, fast and discrete – our property search