E & G IMMOBILIEN > COMMERCIAL PROPERTY > Moderne Flächen in Feuerbach!
Aussenbild
Aussenansicht
Büro
Aufenthalt
Aufenthalt
Büro
Foyer
Aussenansicht
Aufzug
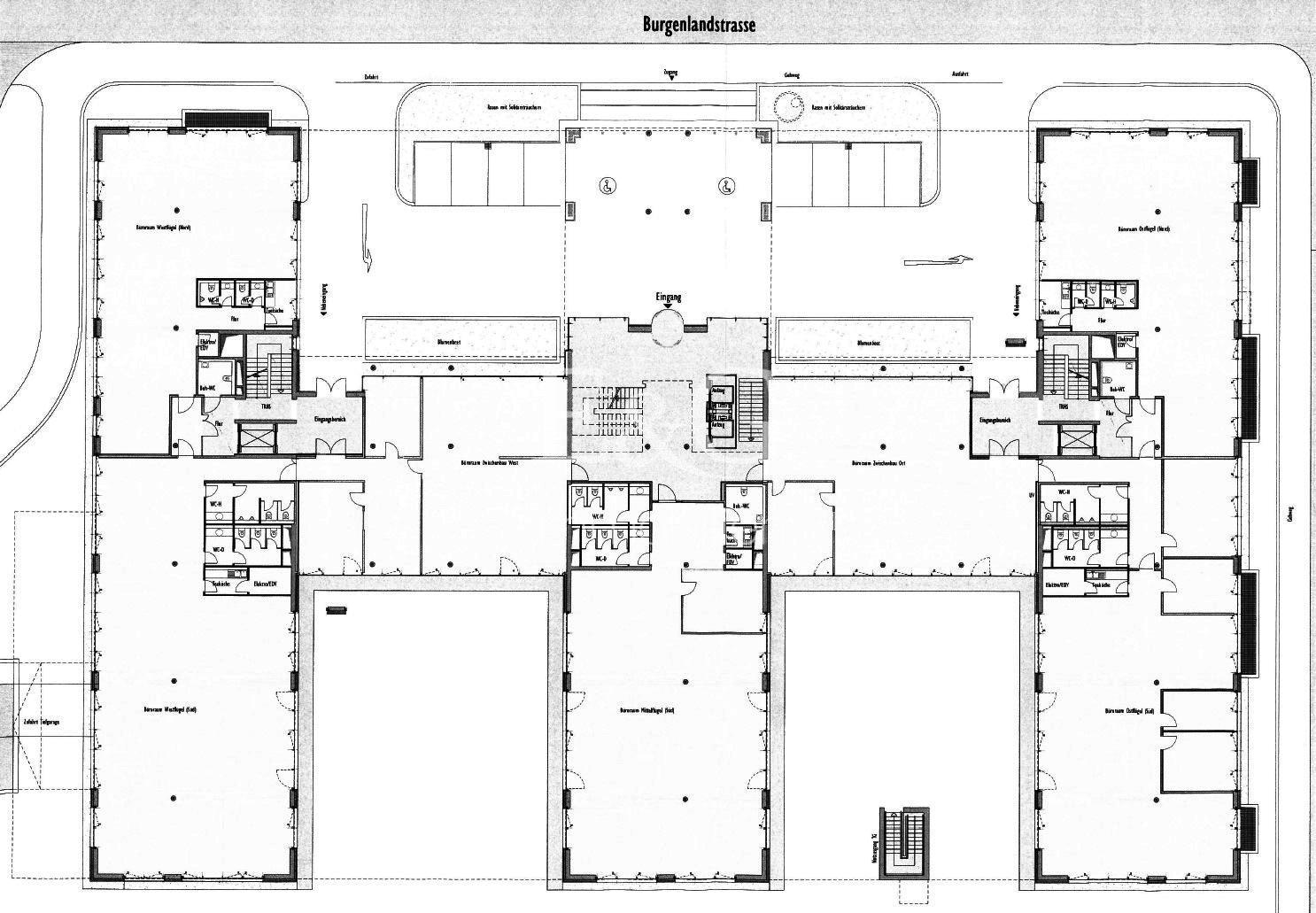
Erdgeschoss
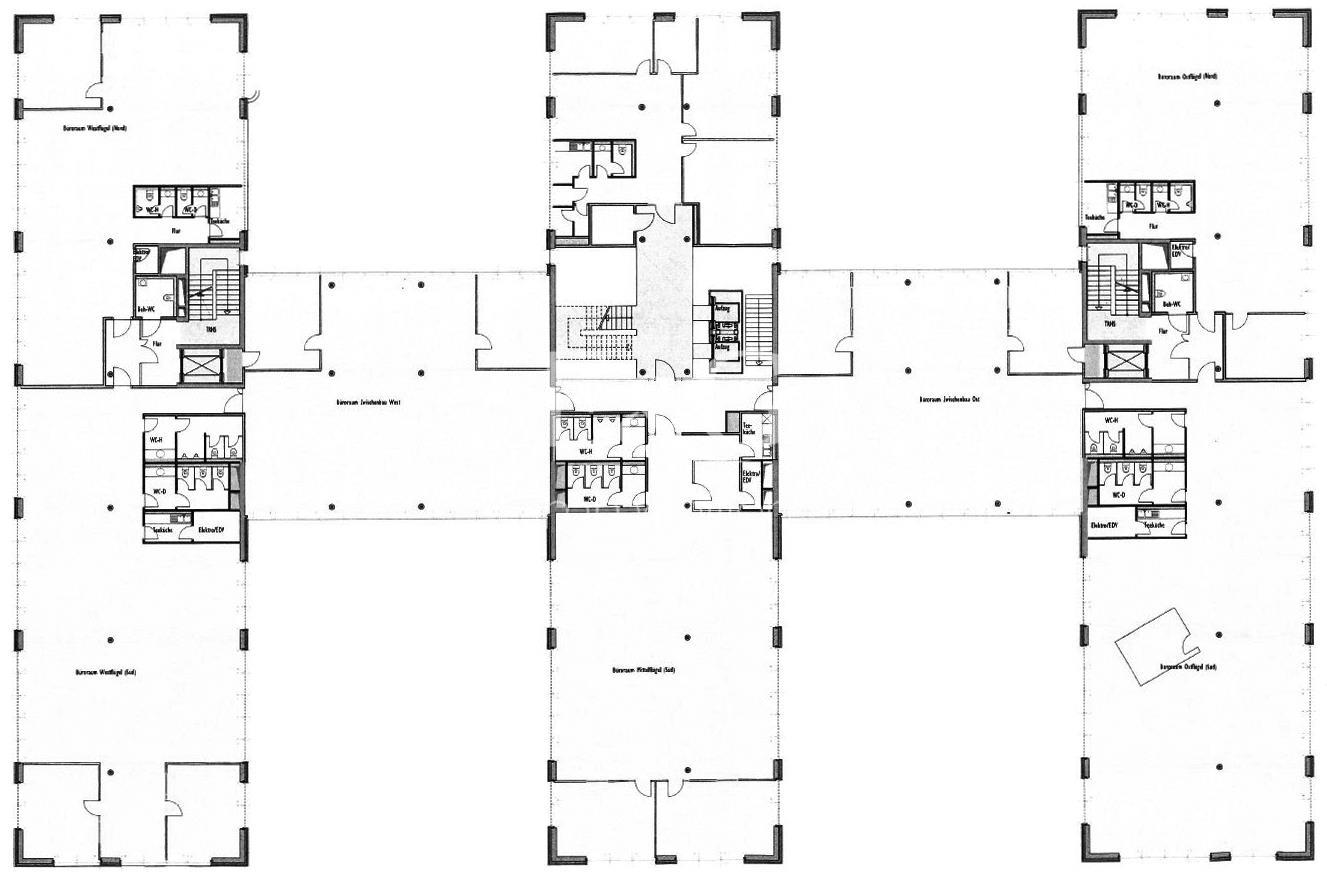
2. Obergeschoss
Zufahrt Tiefgarage
Aussenbild
Aussenansicht
Büro
Aufenthalt
Aufenthalt
Büro
Foyer
Aussenansicht
Aufzug
Erdgeschoss
2. Obergeschoss
Zufahrt Tiefgarage

Moderne Flächen in Feuerbach!

Stuttgart

13,50
Rent € per m²
2.139
Fläche teilbar ab (m²)

Die hochmodernen Büroflächen befinden sich in bester Lage in Stuttgart-Feuerbach, direkt gegenüber des "Feuerbach Centers", das mit einer Vielzahl an Einkaufsmöglichkeiten zu überzeugen weiß. Die hervorragende Anbindung an den öffentlichen Nahverkehr macht den Standort besonders attraktiv: Der Feuerbacher Bahnhof ist nur 7 Gehminuten entfernt, von dort gelangen Sie in etwa 10 Minuten in die Stuttgarter Innenstadt. Auch die U-Bahn-Haltestelle Wilhelm-Geiger-Platz ist in nur 9 Minuten zu erreichen. Die moderne Architektur des Gebäudes bietet großzügige Verglasungen, die für lichtdurchflutete und freundliche Büroflächen sorgen. Zudem finden sich in direkter Umgebung zahlreiche Cafés und Restaurants, die perfekte Pausenmöglichkeiten bieten und die hohe Lebensqualität dieses Standorts unterstreichen.


Eckdaten

OBJECT TYPE
Büro/Praxis
ORT
Stuttgart
BÜRO- /PRAXIS­FLÄCHE IN M²
4.576
FLÄCHE TEILBAR AB (M²)
2.139
BAUJAHR
2003
PROVISION
provisionsfrei
OBJEKTNUMMER
EuG11871

LAGEKRITERIEN

ENTFERNUNG NÄCHSTER HAUPTBAHNHOF
4.5 KM
ENTFERNUNG NÄCHSTE AUTOBAHN
8.4 KM
ENTFERNUNG NÄCHSTER FLUGHAFEN
18.4 KM
Ausstattung / Objektdetails

Die Flächen verfügen über eine hochwertige Ausstattung:

  • Deckenhöhe 3m
  • Hohlraumboden
  • Fensterraster 1,30 m
  • Bürotiefe 4,50-6,00 m
  • Natürliche Belüftung
  • TG in Gebäude
  • Außenliegender Sonnenschutz
  • Bodenbelastung 500 KG/m²
  • Dreh-Kipp Flügel
  • KAT-6 Verkabelung, 2 Anschlüsse
  • Glasfaseranschluß im Gebäude
  • Übernahme Mobiliar möglich
  • IT Raum / Etage
  • Kühlung
  • Behinderten WC
Please allow cookies,
to display a map from Google Maps.

Contact

SPEAK TO US!

This might also be of interest to you

Find Your Personal Property
Simple, fast and discrete – our property search