E & G IMMOBILIEN > COMMERCIAL PROPERTY > Bürofläche in herrschaftlicher Villa
Gebäude
Bild
Büro
Büro
Büro
Büro
Büro
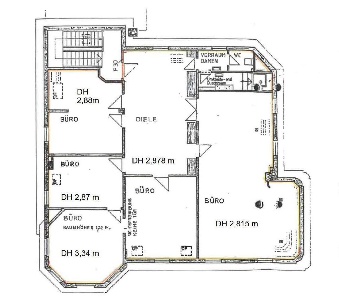
Grundriss
Bild
Gebäude
Bild
Büro
Büro
Büro
Büro
Büro
Grundriss
Bild

Bürofläche in herrschaftlicher Villa

Stuttgart

17,50
Rent € per m²
196
Fläche teilbar ab (m²)

Die Bürofläche befindet sich im 2. Obergeschoss (Dachgeschoss) einer im Jahre 1896 von Lambert/Stahl im Stile des Historismus/Neobarock errichteten Villa. Das Gebäude steht unter Denkmalschutz. Die lichtdurchfluteten Räumlichkeiten sind Richtung Süden ausgerichtet und bestechen durch die fantastische Aussicht Richtung Fernsehturm


Eckdaten

OBJECT TYPE
Büro/Praxis
ORT
Stuttgart
BÜRO- /PRAXIS­FLÄCHE IN M²
196
FLÄCHE TEILBAR AB (M²)
196
BAUJAHR
1896
Ölheizung
Ja
PROVISION
provisionsfrei
OBJEKTNUMMER
EuG11956

LAGEKRITERIEN

ENTFERNUNG NÄCHSTER HAUPTBAHNHOF
2.5 KM
ENTFERNUNG NÄCHSTE AUTOBAHN
10 KM
ENTFERNUNG NÄCHSTER FLUGHAFEN
12.6 KM
Ausstattung / Objektdetails

Außergewöhnlich hohe Decken: Turmzimmer ca. 3,35 m, ansonsten ca. 2,90 mIT-Verkabelung: KAT 7 (kann vom Vormieter übernommen werden)Glasfaser-Anbieter: 1&1DoppelfensterEinbauschränkeSanitäre Anlagen: 1 WC, 1 WaschbeckenKellerraum im Untergeschoss: ca. 10 m²Küchenanschlüsse sind vorhandenAußenliegender Sonnenschutz: Holzrolläden

Please allow cookies,
to display a map from Google Maps.

Contact

SPEAK TO US!

This might also be of interest to you

Find Your Personal Property
Simple, fast and discrete – our property search