E & G IMMOBILIEN > COMMERCIAL PROPERTY > Attraktive Bürofläche im Stuttgarter Westen
Titelbild
Büro
Büro
Büro
Büro
Büro
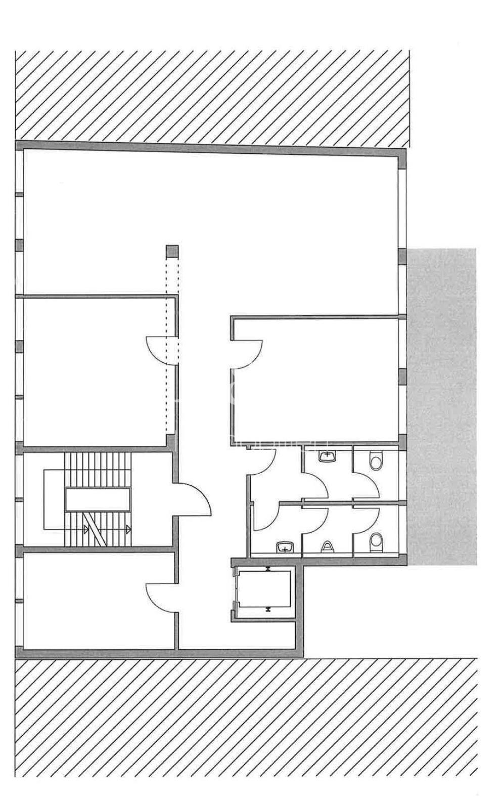
3.OG
Außenansicht
Titelbild
Büro
Büro
Büro
Büro
Büro
3.OG
Außenansicht

Attraktive Bürofläche im Stuttgarter Westen

Stuttgart

17,00
Rent € per m²
144
Fläche teilbar ab (m²)

Die angebotene Bürofläche mit einer Größe von ca. 144 m² befindet sich im 3. Obergeschoss eines gepflegten Bürogebäudes aus dem Jahr 1953, das kontinuierlich modernisiert wurde. Sie ist bequem über einen Personenaufzug erreichbar und überzeugt durch eine helle, freundliche Arbeitsatmosphäre dank großzügiger Fensterfronten. Die Fläche ist vollständig klimatisiert und verfügt über getrennte Sanitäranlagen sowie eine kleine Teeküche. Auf Wunsch kann das abgebildete Mobiliar gegen eine Ablöse übernommen werden. Besonders attraktiv ist die sofortige Bezugsfähigkeit der Fläche, was ein unkompliziertes Plug & Play für Unternehmen ermöglicht. Ob als klassisches Büro, Kanzlei oder kreative Arbeitsumgebung – diese Fläche bietet ideale Voraussetzungen für einen produktiven Arbeitsalltag.


Eckdaten

OBJECT TYPE
Büro/Praxis
ORT
Stuttgart
BÜRO- /PRAXIS­FLÄCHE IN M²
144
FLÄCHE TEILBAR AB (M²)
144
BAUJAHR
1953
PROVISION
Provisionspflichtig
OBJEKTNUMMER
EuG12156

LAGEKRITERIEN

ENTFERNUNG NÄCHSTER HAUPTBAHNHOF
1.6 KM
ENTFERNUNG NÄCHSTE AUTOBAHN
10.9 KM
ENTFERNUNG NÄCHSTER FLUGHAFEN
14 KM
Please allow cookies,
to display a map from Google Maps.

Contact

SPEAK TO US!

This might also be of interest to you

Find Your Personal Property
Simple, fast and discrete – our property search