E & G IMMOBILIEN > COMMERCIAL PROPERTY > Helles und offenes Büroloft in saniertem Zustand
Titelbild
Frontansicht
Seitenansicht
Büro
Büro
Büro
Büro
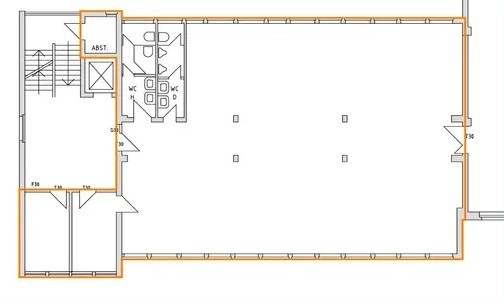
Grundriss 4.OG
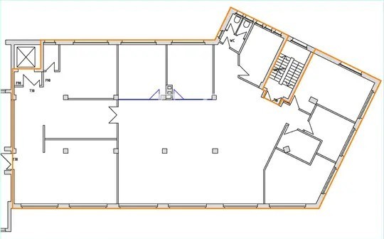
Grundriss 3.OG
Innenansicht3
Titelbild
Frontansicht
Seitenansicht
Büro
Büro
Büro
Büro
Grundriss 4.OG
Grundriss 3.OG
Innenansicht3

Helles und offenes Büroloft in saniertem Zustand

Stuttgart

10,50
Rent € per m²
277
Fläche teilbar ab (m²)

Das Bürogebäude in der Stöckachstraße 16 überzeugt durch seine zentrale Lage im aufstrebenden Stuttgarter Osten sowie seine charaktervolle Architektur. Die Büroeinheit im 3. Obergeschoss bietet auf 466 m² eine neu sanierte Fläche, die durch hohe Deckenhöhen und große Fenster für eine angenehme Arbeitsatmosphäre sorgt. Die Fläche ist über einen Personen-/Lastenaufzug mit direkter Anbindung zur Bürofläche komfortabel erreichbar. Zusätzlich stehen Außen- und Innenstellplätze zur Miete zur Verfügung. Die Beheizung erfolgt über Zentralheizung mit Fernwärme. Eine Lagerfläche ist ebenfalls vorhanden und flexibel nutzbar. Highlights der Fläche: • Neu sanierte Bürofläche auf 466 m² im 3. OG • Hohe Deckenhöhe für lichtdurchflutete Räume • Angenehme Arbeitsatmosphäre • Personen-/Lastenaufzug mit direkter Anbindung • • Außen- und Innenstellplätze zur Miete Lagerfläche • vorhanden Zentralheizung über Fernwärme


Eckdaten

OBJECT TYPE
Büro/Praxis
ORT
Stuttgart
BÜRO- /PRAXIS­FLÄCHE IN M²
743
FLÄCHE TEILBAR AB (M²)
277
BAUJAHR
1914
Zentralheizung
Ja
PROVISION
provisionsfrei
Nebenkosten in €/Monat
1.667,60
OBJEKTNUMMER
EuG12354

LAGEKRITERIEN

ENTFERNUNG NÄCHSTER HAUPTBAHNHOF
1.8 KM
ENTFERNUNG NÄCHSTE AUTOBAHN
11.8 KM
ENTFERNUNG NÄCHSTER FLUGHAFEN
14.6 KM
Ausstattung / Objektdetails

• Hohe Deckenhöhe für lichtdurchflutete Räume

• Angenehme Arbeitsatmosphäre

• Personen-/Lastenaufzug mit direkter Anbindung

• Außen- und Innenstellplätze zur MieteLagerfläche • vorhandenZentralheizung über Fernwärme

Please allow cookies,
to display a map from Google Maps.

Contact

SPEAK TO US!

This might also be of interest to you

Find Your Personal Property
Simple, fast and discrete – our property search