E & G IMMOBILIEN > COMMERCIAL PROPERTY > Hochwertig, flexibel und gut angebunden
Außenansicht
Eingangsbereich
Büro
Büro
Besprechung
Büro
Teeküche
2. Obergeschoss
Gebäudeansicht
Außenansicht
Eingangsbereich
Büro
Büro
Besprechung
Büro
Teeküche
2. Obergeschoss
Gebäudeansicht

Hochwertig, flexibel und gut angebunden

Stuttgart

14,80
Rent € per m²
359
Fläche teilbar ab (m²)

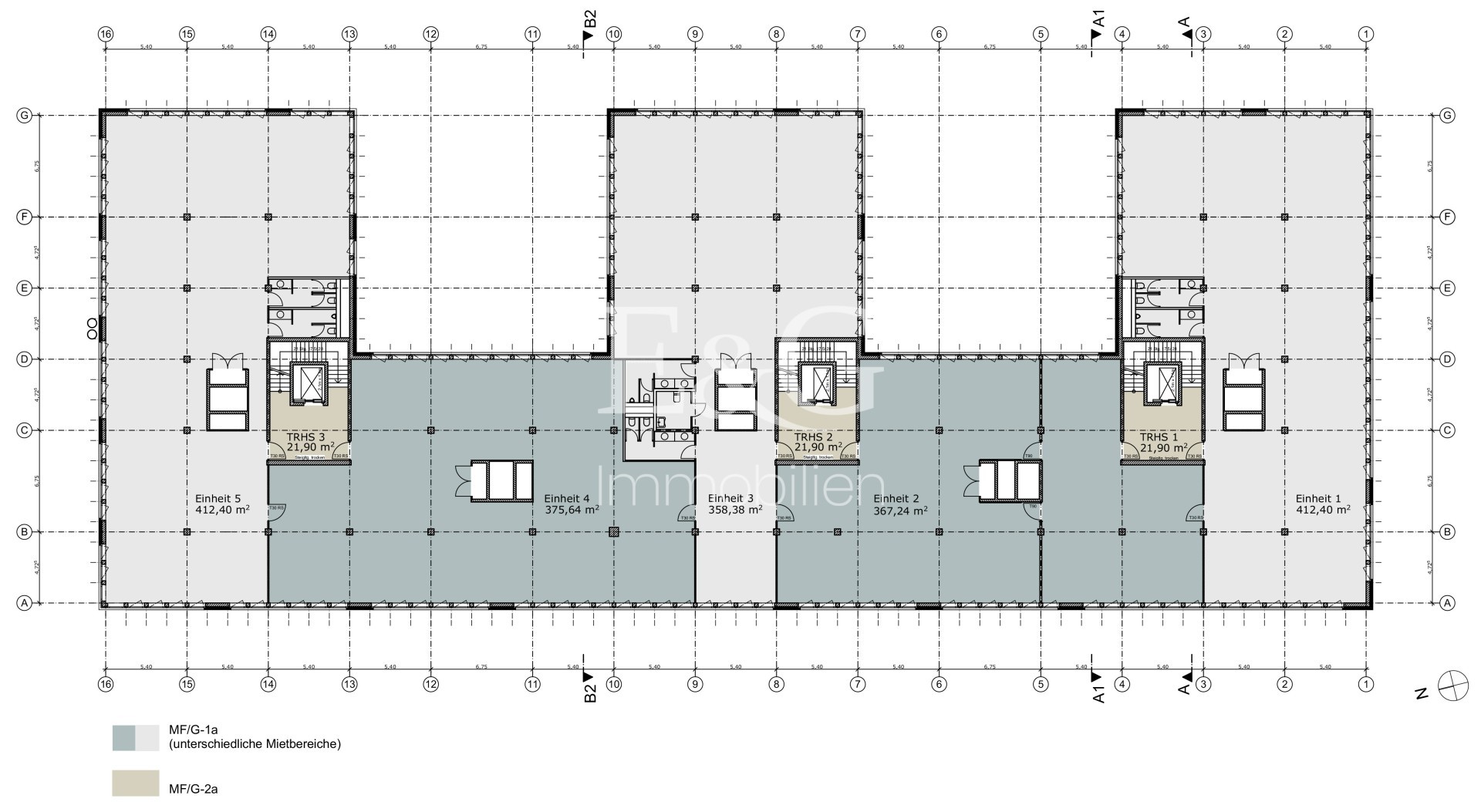
Das Bürogebäude Industriestraße 23 befindet sich im südlich von Stuttgart gelegenen Gewerbegebiet "Am Wallgraben" im Stadtteil Vaihingen. Der Bahnhof Vaihingen befindet sich nur wenige Gehminuten entfernt, sodass eine hervorragende Anbindung an den ÖPNV gewährleistet ist. Das Gewerbegebiet ist ausserdem durch die Nord-Süd Tangente direkt an die Autobahn A 8 angebunden. Im näheren Umfeld des Gebäudes befinden sich Einkaufsmöglichkeiten sowie Restaurants und Kantinenbetriebe. 2. Obergeschoss: ca. 437 m² 5. Obergeschoss: ca. 1.578 m²


Eckdaten

OBJECT TYPE
Büro/Praxis
ORT
Stuttgart
BÜRO- /PRAXIS­FLÄCHE IN M²
1.929
FLÄCHE TEILBAR AB (M²)
359
PROVISION
provisionsfrei
OBJEKTNUMMER
EuG20010

LAGEKRITERIEN

ENTFERNUNG NÄCHSTER HAUPTBAHNHOF
10.4 KM
ENTFERNUNG NÄCHSTE AUTOBAHN
3.4 KM
ENTFERNUNG ZUM ZENTRUM
14.2 KM
ENTFERNUNG NÄCHSTER FLUGHAFEN
8.3 KM
Ausstattung / Objektdetails

Die Fläche besticht durch folgende Ausstattung:

  • Separater Zugang/Klingel/Briefkasten
  • Teppichboden
  • Deckenklimasegel (Wärme und Kälte)
  • Doppelboden mit Bodentanks
  • Teilweise Cat-7 Verkabelung
  • Teeküchenanschlüsse
  • WCs
  • Neue Arbeitswelten mit einer Mischung aus Open Space und abgetrennten Räumen
Please allow cookies,
to display a map from Google Maps.

Contact

SPEAK TO US!

This might also be of interest to you

Find Your Personal Property
Simple, fast and discrete – our property search