E & G IMMOBILIEN > COMMERCIAL PROPERTY > Haidhausen, wir haben Platz! Büroträume in den Grillparzer Höfen
Außenansicht
Außenansicht
Innenansicht
Eingangsbereich
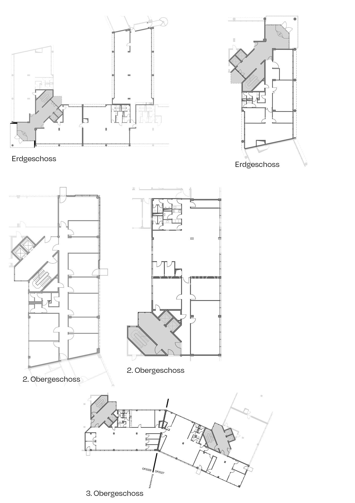
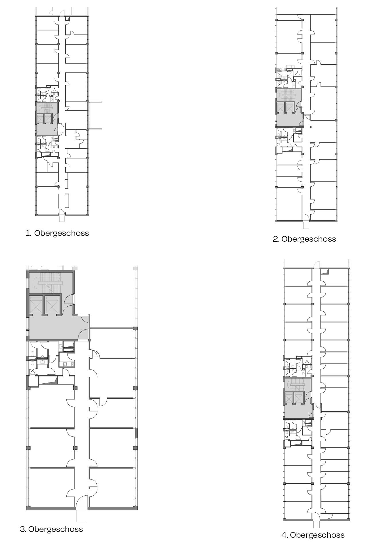
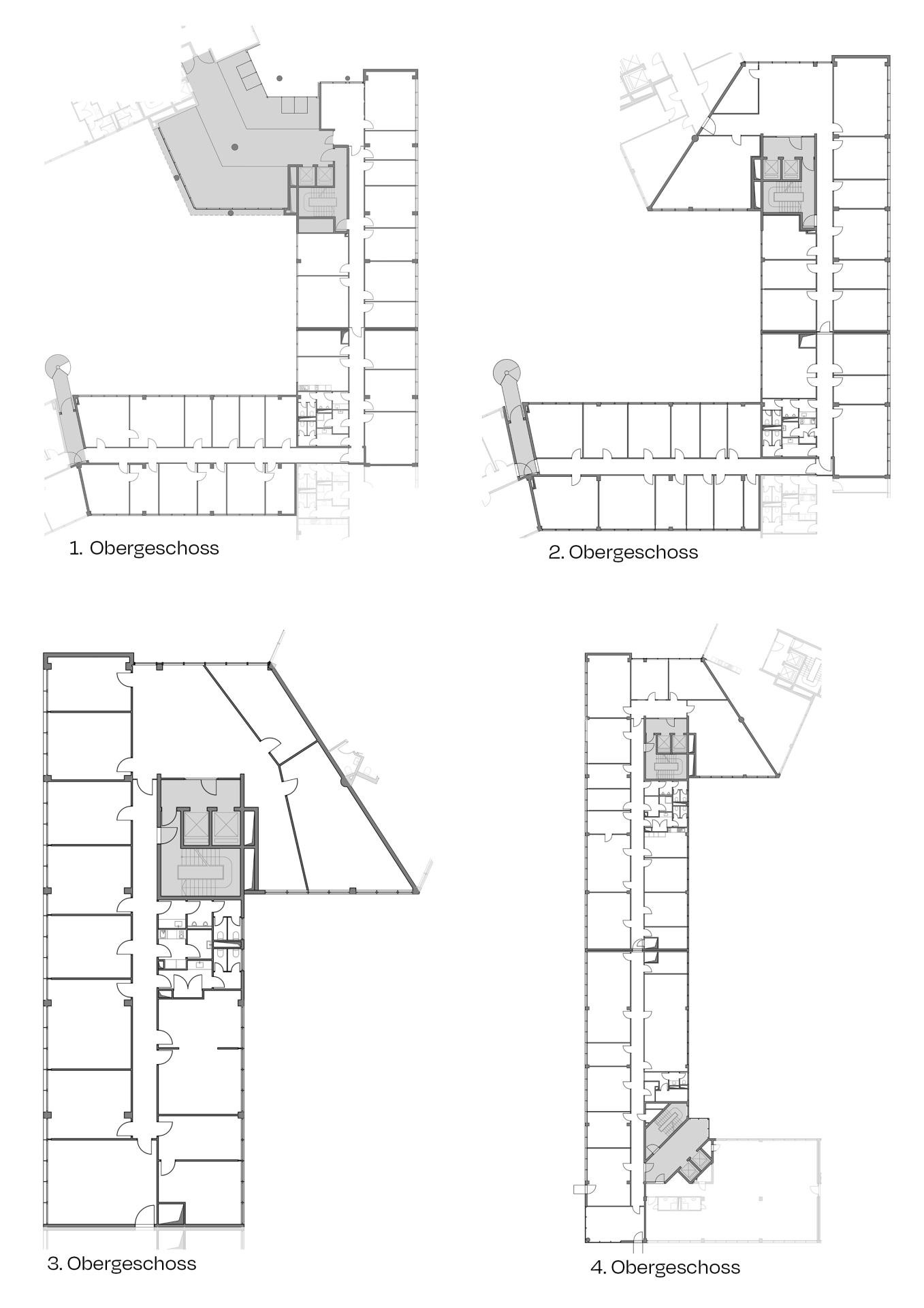
Haus 10
Haus 12a
Haus 14
Haus 16
Außenansicht
Außenansicht
Innenansicht
Eingangsbereich
Haus 10
Haus 12a
Haus 14
Haus 16

Haidhausen, wir haben Platz! Büroträume in den Grillparzer Höfen

München

22,50
Rent € per m²
281
Fläche teilbar ab (m²)

Die "Grillparzer Höfe" sind ein modernes Büro- und Geschäftsensemble im Herzen von Haidhausen. Repräsentative Eingangsbereiche, helle Räume mit bis zu 3,25 m Höhe und flexible Grundrisse bieten ideale Bedingungen für unterschiedlichste Bürokonzepte. Ruhige, begrünte Innenhöfe schaffen eine entspannte Arbeitsatmosphäre – mitten in München und bestens angebunden.


Eckdaten

OBJECT TYPE
Büro/Praxis
ORT
München
BÜRO- /PRAXIS­FLÄCHE IN M²
16.074
FLÄCHE TEILBAR AB (M²)
281
BAUJAHR
1997
PROVISION
provisionsfrei
OBJEKTNUMMER
EuG23369

LAGEKRITERIEN

ENTFERNUNG NÄCHSTER HAUPTBAHNHOF
4.7 KM
ENTFERNUNG NÄCHSTER FLUGHAFEN
36.8 KM
Ausstattung / Objektdetails
  • Modernes Büro- und Geschäftsgebäude
  • Baujahr 1997
  • Repräsentativer Eingangsbereich
  • Flexible Raumaufteilung möglich
  • Ruhige, begrünte Innenhöfe
  • Personenaufzüge vorhanden
  • Außenliegender Sonnenschutz
Please allow cookies,
to display a map from Google Maps.

Contact

SPEAK TO US!

This might also be of interest to you

Find Your Personal Property
Simple, fast and discrete – our property search