E & G IMMOBILIEN > COMMERCIAL PROPERTY > Arbeiten mit Blick ins Grüne – Moderne Büros am Zamilapark
Außenansicht
Innenansicht
Innenansicht
Innenansicht
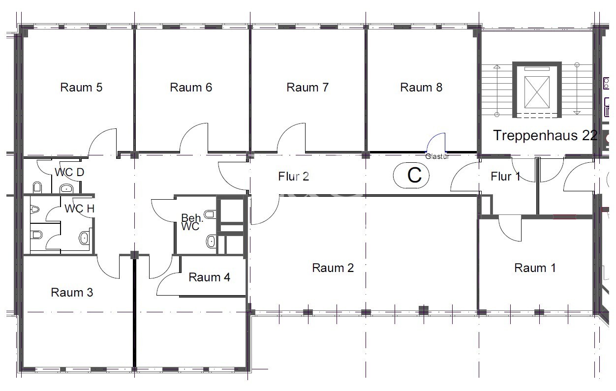
Erdgeschoss
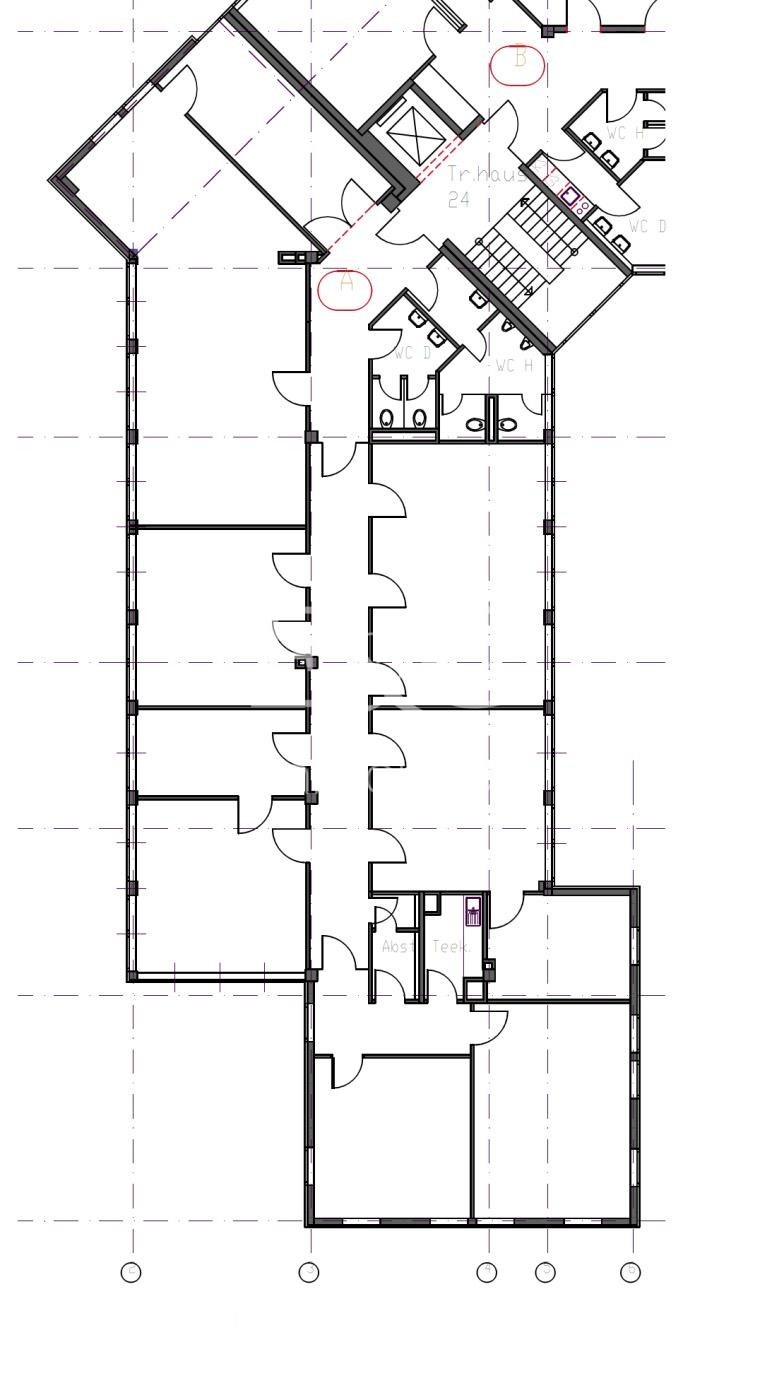
1. Obergeschoss
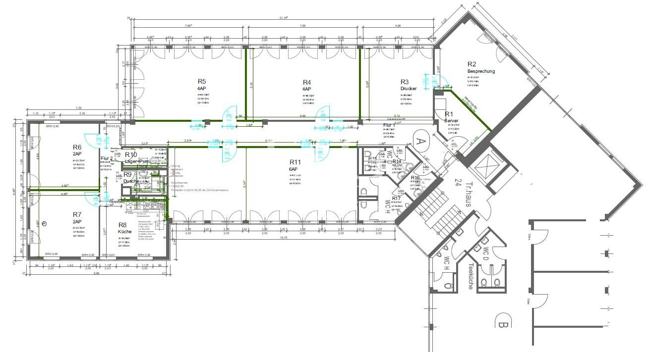
2. Obergeschoss (366m²)
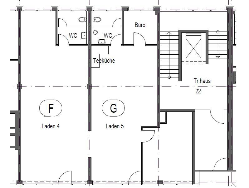
2. Obergeschoss (304 m²)
Innenansicht
Außenansicht
Innenansicht
Innenansicht
Innenansicht
Erdgeschoss
1. Obergeschoss
2. Obergeschoss (366m²)
2. Obergeschoss (304 m²)
Innenansicht

Arbeiten mit Blick ins Grüne – Moderne Büros am Zamilapark

München

9,60
Rent € per m²
61
Fläche teilbar ab (m²)

Das gepflegte Büro- und Geschäftsgebäude am Zamilapark bietet flexible Flächen in attraktiver Lage. Große Fensterflächen, moderner Bodenbelag und eine gute technische Ausstattung schaffen ein angenehmes Arbeitsumfeld. Gastronomie im Haus und Stellplätze vor Ort runden das Angebot ab.


Eckdaten

OBJECT TYPE
Büro/Praxis
ORT
München
BÜRO- /PRAXIS­FLÄCHE IN M²
1.169
FLÄCHE TEILBAR AB (M²)
61
BAUJAHR
1982
PROVISION
provisionsfrei
OBJEKTNUMMER
EuG23818

LAGEKRITERIEN

ENTFERNUNG NÄCHSTER HAUPTBAHNHOF
8 KM
ENTFERNUNG NÄCHSTE AUTOBAHN
0.55 KM
ENTFERNUNG NÄCHSTER FLUGHAFEN
39 KM
Ausstattung / Objektdetails
  • Büro- und Geschäftsgebäude
  • vor wenigen Jahren grundlegend renoviert
  • große Glaselemente
  • Parkettboden
  • Kühlung vorhanden
  • Personenaufzug
  • Restaurant im Haus
  • Außenstellplätze für Kunden
Please allow cookies,
to display a map from Google Maps.

Contact

SPEAK TO US!

This might also be of interest to you

Find Your Personal Property
Simple, fast and discrete – our property search