T
+49 711 20702-700
E
gewerbe@eug.de
EN
|
DE
Residential Real Estate
Commercial Real Estate
Real Estate
Industrial & Logistics
Logistics Hall
storage area
Service
Office Letting
Industrial & Logistics
Investment
Research
Retail
Search order
Research
Office Market Stuttgart
Investment Market South Germany
Industrial & Logistics Market Stuttgart
Office & Investment Market Munich
Object
About E & G Real Estate
Our Values
Our Service
Our History
Team
Our Locations
Stuttgart
Munich
German Property Partners
Contact
Track Record
Stuttgart | Office Letting
Stuttgart | Investment
Stuttgart | Industrial & Logistics
Munich | Office Letting
Munich | Investment
Latest News
Press News
Market Reports
Research
ENGLISH
DEUTSCH
×
+49 711 20702-800
Zum Direktkontakt
Rufen Sie uns jederzeit an
Exposé-Anfragen
Fordern Sie jetzt die spezifischen Objektunterlagen an
Mr
Ms
Not specified
* this is a required field
I have read the
Data Protection
.
Send
E & G IMMOBILIEN
>
COMMERCIAL PROPERTY
>
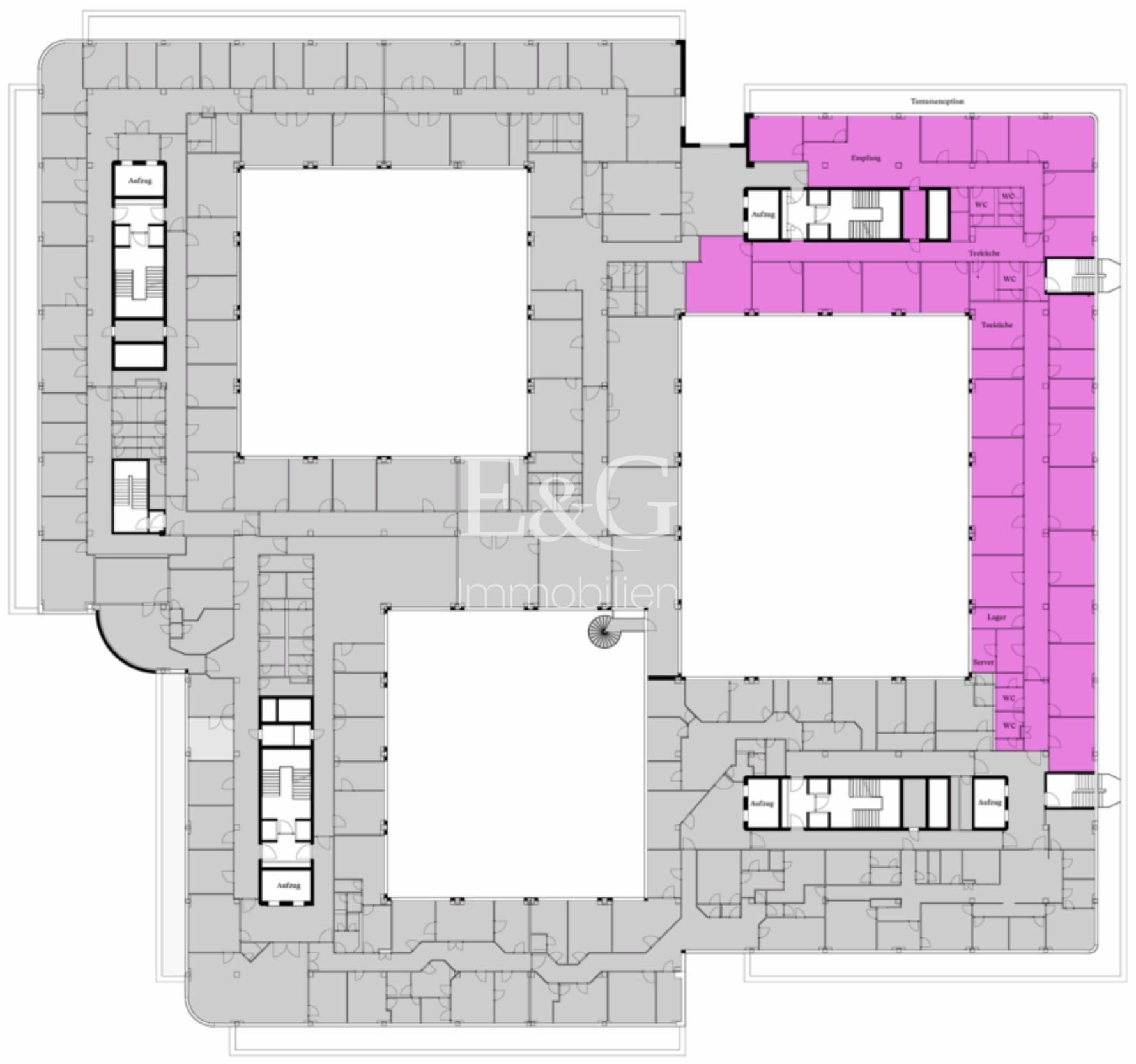
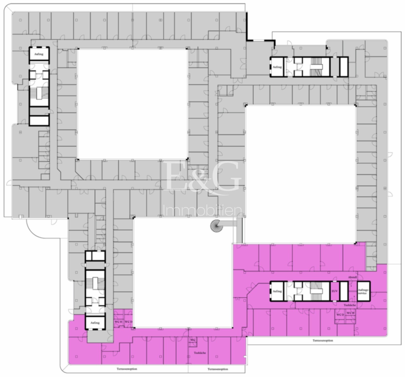
ELISENHOF - Flexibilität Meets Traumlage
Previous
Object
Next
Object
ELISENHOF - Flexibilität Meets Traumlage
München
28,00
Rent € per m²
196
Fläche teilbar ab (m²)
Eckdaten
OBJECT TYPE
Büro/Praxis
ORT
München
BÜRO- /PRAXISFLÄCHE IN M²
4.786
FLÄCHE TEILBAR AB (M²)
196
BAUJAHR
1984
PROVISION
provisionsfrei
OBJEKTNUMMER
EuG23996
LAGEKRITERIEN
ENTFERNUNG NÄCHSTE AUTOBAHN
5.6 KM
ENTFERNUNG NÄCHSTER FLUGHAFEN
35.7 KM
Ausstattung / Objektdetails
Key Facts:
–
Sicherheitsdienst 24/7
–
Kameraüberwachung innen und außen
–
Facility Manager vor Ort inkl. Bereitschaftsdienst
–
Technischer Property Manager vor Ort
–
Eigener Hauptbahnhofzugang
–
U/S-Bahn, Tram direkt vor dem Gebäude
–
Restaurants im Gebäude
–
Supermärkte im Gebäude
–
Ärzte im Gebäude
–
24/7 Tiefgarage, Personal vor Ort
–
395 Stellplätze, teilweise E-Ladesäulen
–
Alter Botanischer Garten 100m
–
Separate Büroeingänge, je 2 Aufzüge, Sanierung in Vorbereitung
–
Exklusive Dachterrassen in 6. und 7. OG mit Blick über die Stadt
Sustainability Facts:
–
DGNB Zertifizierung Gold
–
Fernwärme, Fernkälte (am Anfang 2025)
–
E-Ladesäulen im Parkhaus
–
Ressourcenschonende Erreichbarkeit durch ÖPNV
–
Smart Metering
Technical Facts:
–
Sprinkleranlage
–
Fernwärme, Fernkälte (am Anfang 2025)
–
Zu-/Abluft
–
Glasfaser anliegend
–
Flächendeckende Brandmeldeanlage
–
Raumhöhe ca. 2,90m
Please allow cookies,
to display a map from Google Maps.
Show Cookie Popup
Contact
SPEAK TO US!
Samuel Klein-Wiele
Your contact to us
+49 89 179594-25
samuel.klein-Wiele@eug.de
Request Exposé
This might also be of interest to you
Tamm
Penthouse Büro in Tamm-Hohenstange
8,50
Rent € per m²
3.600
Office / practice space in m²
Tamm
Penthouse Büro in Tamm-Hohenstange
Leinfelden-Echterdingen
Attraktiver Bürocampus in Flughafennähe
12,53
Rent € per m²
2.764
Office / practice space in m²
Leinfelden-Echterdingen
Attraktiver Bürocampus in Flughafennähe
Weissach
IM ALLEINAUFTRAG - Hochwertige Werkstatt- und Büroflächen
12,00
Rent € per m²
1.039
Office / practice space in m²
3.767
Total area in circa m²
Weissach
IM ALLEINAUFTRAG - Hochwertige Werkstatt- und Büroflächen
Sindelfingen
Arbeiten und Schlafen unter einem Dach
8,00
Rent € per m²
202
Office / practice space in m²
Sindelfingen
Arbeiten und Schlafen unter einem Dach
Ludwigsburg
Exklusive Flächen in historischer Gründerzeitvilla
on request
Price
515
Office / practice space in m²
Ludwigsburg
Exklusive Flächen in historischer Gründerzeitvilla
Find Your Personal Property
Simple, fast and discrete – our property search
SEARCH
RESIDENTIAL PROPERTY
COMMERCIAL PROPERTY
ABOUT US
CONTACT
E & G Real Estate GmbH
Börsenplatz 1
70174 Stuttgart
T
+49 711 20702-700
For owners
Office letting
Our services
Launch your property
For developers
Industrial & logistics
Our team
Locations
Property search
Investment
News
Property listings
Research
German Property Partners
Retail
© 2026 - E & G Real Estate GmbH
Imprint
|
Data Protection
|
Terms and Conditions
×
E & G News
Keep abreast of developments!
Mr
Ms
Not specified
* this is a required field
I have read the
Data Protection
.
Subscribe now
×
Market Reports
Receive our market reports by mail in the future.
Mr
Ms
Not specified
Publications
Büromarktbericht Stuttgart
Investmentmarktbericht Stuttgart
Industrie- & Logistikmarktbericht Stuttgart
Büro- und Investmentmarktbericht München
Top 7 Standorte Industrie- & Logistikmarktbericht
Top 7 Standorte Büro-/Investmentmarktbericht
* this is a required field
I have read the
Data Protection
.
Subscribe now
Thank You
Error
×