E & G IMMOBILIEN > COMMERCIAL PROPERTY > Büroflächen in Feuerbach!
Titelbild
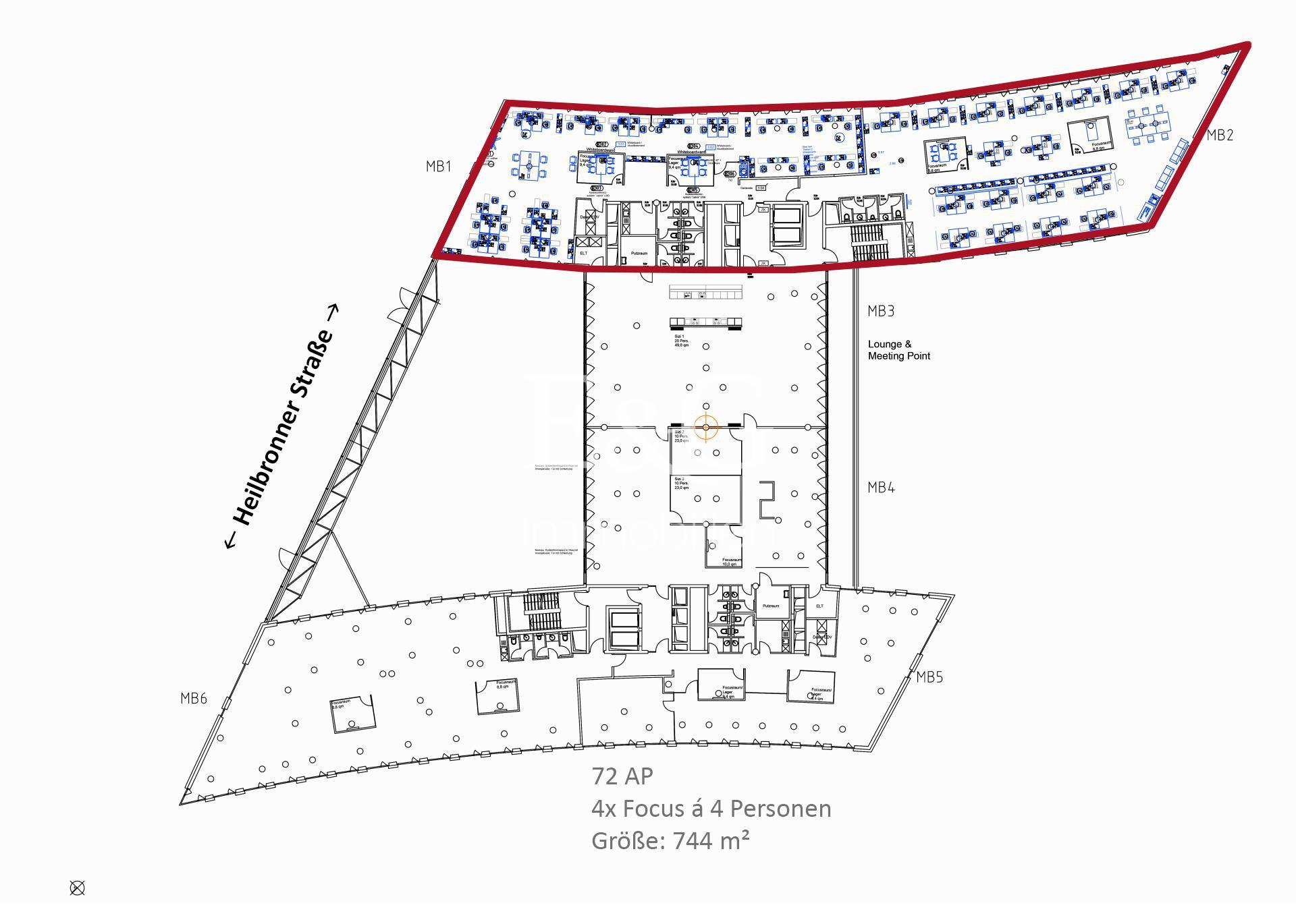
Erdgeschoss
1. Obergeschoss
2. Obergeschoss
3. Obergeschoss
Luftbild
Titelbild
Erdgeschoss
1. Obergeschoss
2. Obergeschoss
3. Obergeschoss
Luftbild

Büroflächen in Feuerbach!

Stuttgart

16,50
Rent € per m²
569
Fläche teilbar ab (m²)

Das OASIS II überzeugt mit einem hochwertigen, modernen Ausbau, der erst ca. fünf Jahre alt ist, und einer erstklassigen, werbewirksamen Lage an der Heilbronner Straße in Stuttgart-Feuerbach. Dank der hervorragenden Anbindung sind sowohl die Stuttgarter Innenstadt als auch die Autobahnzubringer B10/B27 in wenigen Minuten mit dem PKW erreichbar. Die nur wenige Meter entfernte U-Bahn-Haltestelle "Sieglestraße" bietet eine direkte Verbindung zum Hauptbahnhof und in die City, wodurch der Standort sowohl für Mitarbeiter als auch für Kunden ideal erreichbar ist.


Eckdaten

OBJECT TYPE
Büro/Praxis
ORT
Stuttgart
BÜRO- /PRAXIS­FLÄCHE IN M²
6.656
FLÄCHE TEILBAR AB (M²)
569
BAUJAHR
2015
PROVISION
provisionsfrei
OBJEKTNUMMER
EuG4504

LAGEKRITERIEN

ENTFERNUNG NÄCHSTER HAUPTBAHNHOF
1 KM
ENTFERNUNG NÄCHSTE AUTOBAHN
14.9 KM
ENTFERNUNG NÄCHSTER FLUGHAFEN
17.8 KM
Ausstattung / Objektdetails

Die Fläche besticht durch eine hochwertige Ausstattung:

  • Bürofläche vollständig für moderne Arbeitswelten ausgestattet
  • Alternative Arbeitsplätze auf jeder Etage vorhanden (Fokusräume 2-4 Personen)
  • Großzügige Loungebereiche im 1. + 2. OG mit vollständiger Einrichtung bleiben
  • Behindertentoilette im EG für gesamtes Gebäude
  • Stellplatzschlüssel 1 Stellplatz = 79 m²
  • Abgependelte Deckenleuchten
  • Bürotüren mit Glasschwert
  • Hohlraumboden
  • Achraster 1,35m
  • Bauteilaktivierung
Please allow cookies,
to display a map from Google Maps.

Contact

SPEAK TO US!

This might also be of interest to you

Find Your Personal Property
Simple, fast and discrete – our property search