T
+49 711 20702-700
E
gewerbe@eug.de
EN
|
DE
Residential Real Estate
Commercial Real Estate
Real Estate
Industrial & Logistics
Logistics Hall
storage area
Service
Office Letting
Industrial & Logistics
Investment
Research
Retail
Search order
Research
Office Market Stuttgart
Investment Market South Germany
Industrial & Logistics Market Stuttgart
Office & Investment Market Munich
Object
About E & G Real Estate
Our Values
Our Service
Our History
Team
Our Locations
Stuttgart
Munich
German Property Partners
Contact
Track Record
Stuttgart | Office Letting
Stuttgart | Investment
Stuttgart | Industrial & Logistics
Munich | Office Letting
Munich | Investment
Latest News
Press News
Market Reports
Research
ENGLISH
DEUTSCH
×
+49 711 20702-800
Zum Direktkontakt
Rufen Sie uns jederzeit an
Exposé-Anfragen
Fordern Sie jetzt die spezifischen Objektunterlagen an
Mr
Ms
Not specified
* this is a required field
I have read the
Data Protection
.
Send
E & G IMMOBILIEN
>
COMMERCIAL PROPERTY
>
2 min zur S-Bahn / Direkt an der Stammstrecke!
Previous
Object
Next
Object
2 min zur S-Bahn / Direkt an der Stammstrecke!
München
24,50
Rent € per m²
272
Fläche teilbar ab (m²)
-Attraktive Büroeinheiten -DGNB Gold zetifiziert -Betonkernaktivierung
Eckdaten
OBJECT TYPE
Büro/Praxis
ORT
München
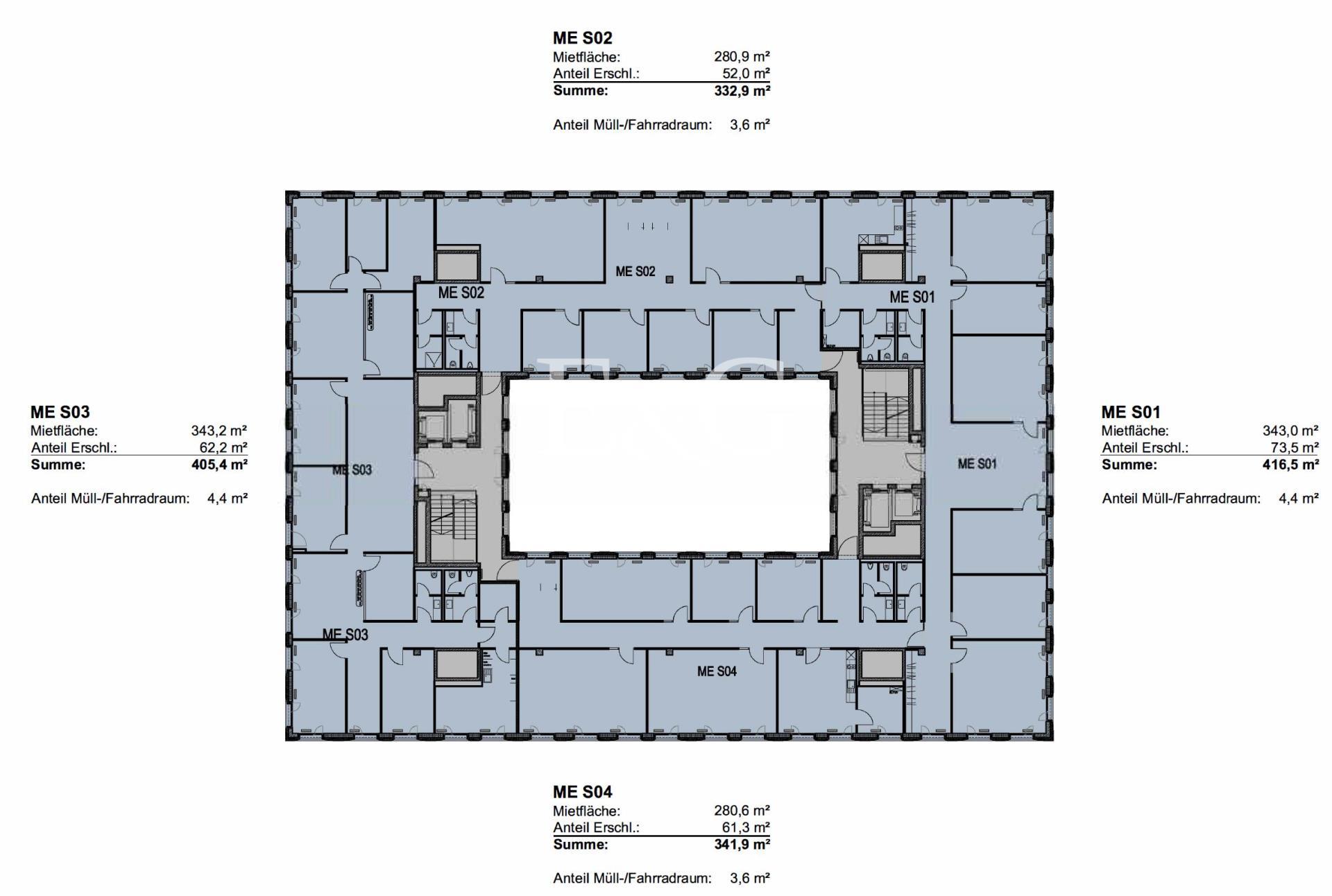
BÜRO- /PRAXISFLÄCHE IN M²
3.457
FLÄCHE TEILBAR AB (M²)
272
BAUJAHR
2011
PROVISION
provisionsfrei
OBJEKTNUMMER
EuG5462
LAGEKRITERIEN
ENTFERNUNG NÄCHSTER HAUPTBAHNHOF
4.4 KM
ENTFERNUNG NÄCHSTE AUTOBAHN
5.6 KM
ENTFERNUNG NÄCHSTER FLUGHAFEN
46.1 KM
Please allow cookies,
to display a map from Google Maps.
Show Cookie Popup
Contact
SPEAK TO US!
Your contact to us
+49 89 179594-0
objektmanagement@eug.de
Request Exposé
This might also be of interest to you
Sindelfingen
MODERNE BÜROFLÄCHE
11,50
Rent € per m²
959
Office / practice space in m²
Sindelfingen
MODERNE BÜROFLÄCHE
Stuttgart
Charmanter Altbau in Gerichtsviertel
13,70
Rent € per m²
242
Office / practice space in m²
Stuttgart
Charmanter Altbau in Gerichtsviertel
Ludwigsburg
Repräsentativer Standort - Attraktive & verkehrsgünstige Büroflächen in Ludwigsburg
12,00
Rent € per m²
343
Office / practice space in m²
Ludwigsburg
Repräsentativer Standort - Attraktive & verkehrsgünstige Büroflächen in Ludwigsburg
Stuttgart
Attraktive Bürofläche am Kriegsberg
17,50
Rent € per m²
672
Office / practice space in m²
Stuttgart
Attraktive Bürofläche am Kriegsberg
Böblingen
Büro-, Praxisfläche im Flugfeld-Office!
16,00
Rent € per m²
351
Office / practice space in m²
Böblingen
Büro-, Praxisfläche im Flugfeld-Office!
Find Your Personal Property
Simple, fast and discrete – our property search
SEARCH
RESIDENTIAL PROPERTY
COMMERCIAL PROPERTY
ABOUT US
CONTACT
E & G Real Estate GmbH
Börsenplatz 1
70174 Stuttgart
T
+49 711 20702-700
For owners
Office letting
Our services
Launch your property
For developers
Industrial & logistics
Our team
Locations
Property search
Investment
News
Property listings
Research
German Property Partners
Retail
© 2025 - E & G Real Estate GmbH
Imprint
|
Data Protection
|
Terms and Conditions
×
E & G News
Keep abreast of developments!
Mr
Ms
Not specified
* this is a required field
I have read the
Data Protection
.
Subscribe now
×
Market Reports
Receive our market reports by mail in the future.
Mr
Ms
Not specified
Publications
Büromarktbericht Stuttgart
Investmentmarktbericht Stuttgart
Industrie- & Logistikmarktbericht Stuttgart
Büro- und Investmentmarktbericht München
Top 7 Standorte Industrie- & Logistikmarktbericht
Top 7 Standorte Büro-/Investmentmarktbericht
* this is a required field
I have read the
Data Protection
.
Subscribe now
Thank You
Error
×