E & G IMMOBILIEN > COMMERCIAL PROPERTY > Vom Atelier bis zum Büro – die WerkStadt macht's möglich
Außenansicht
Außenbereich
Außenansicht
Innenansicht (Fotograf)
Innenansicht (Fotograf)
Innenansicht (Fotograf)
Innenansicht MB10
Innenansicht MB 16
Innenansicht MB 17
Innenansicht (Fotograf)
Innenansicht (Fotograf)
Innenansicht MB 14
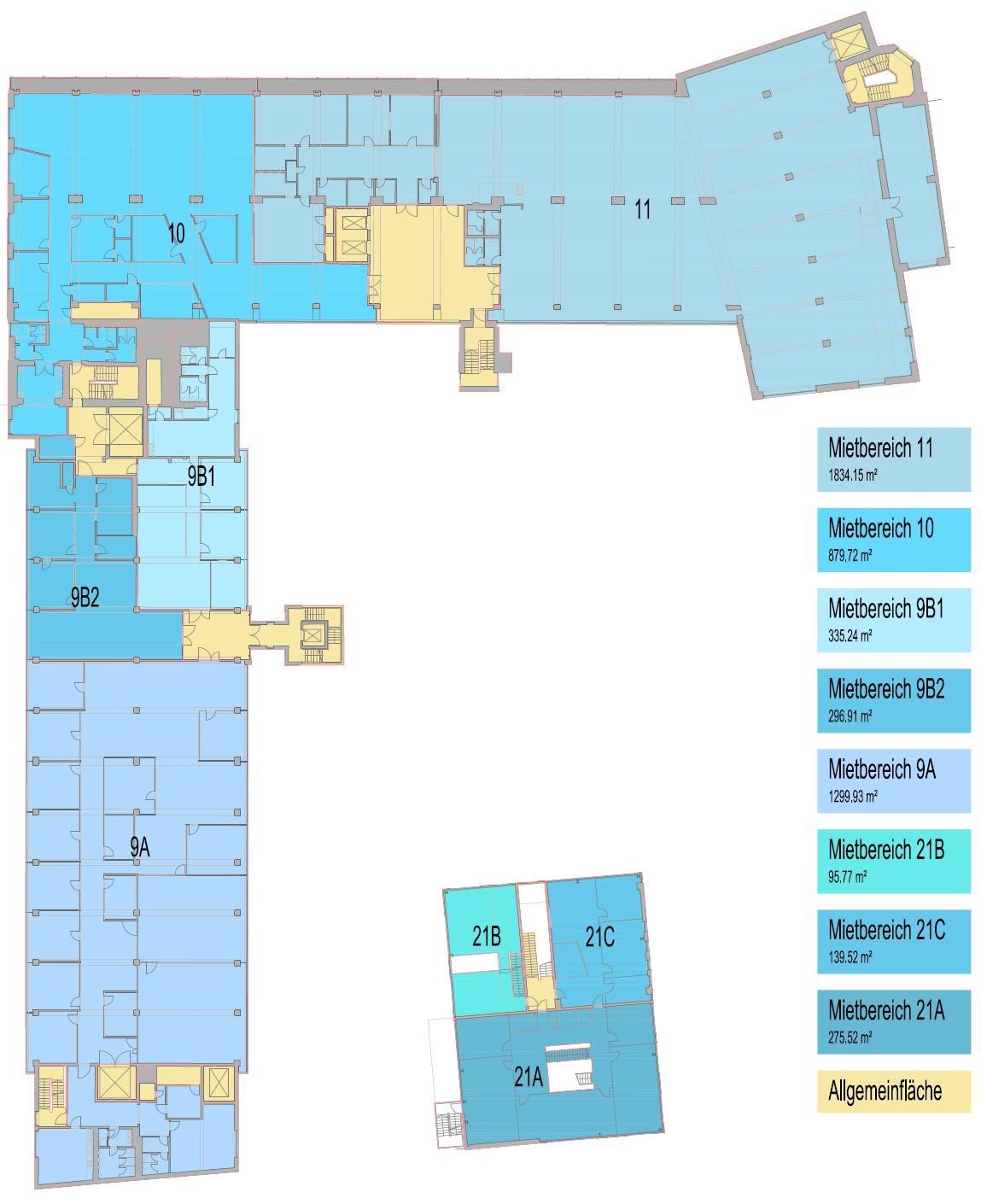
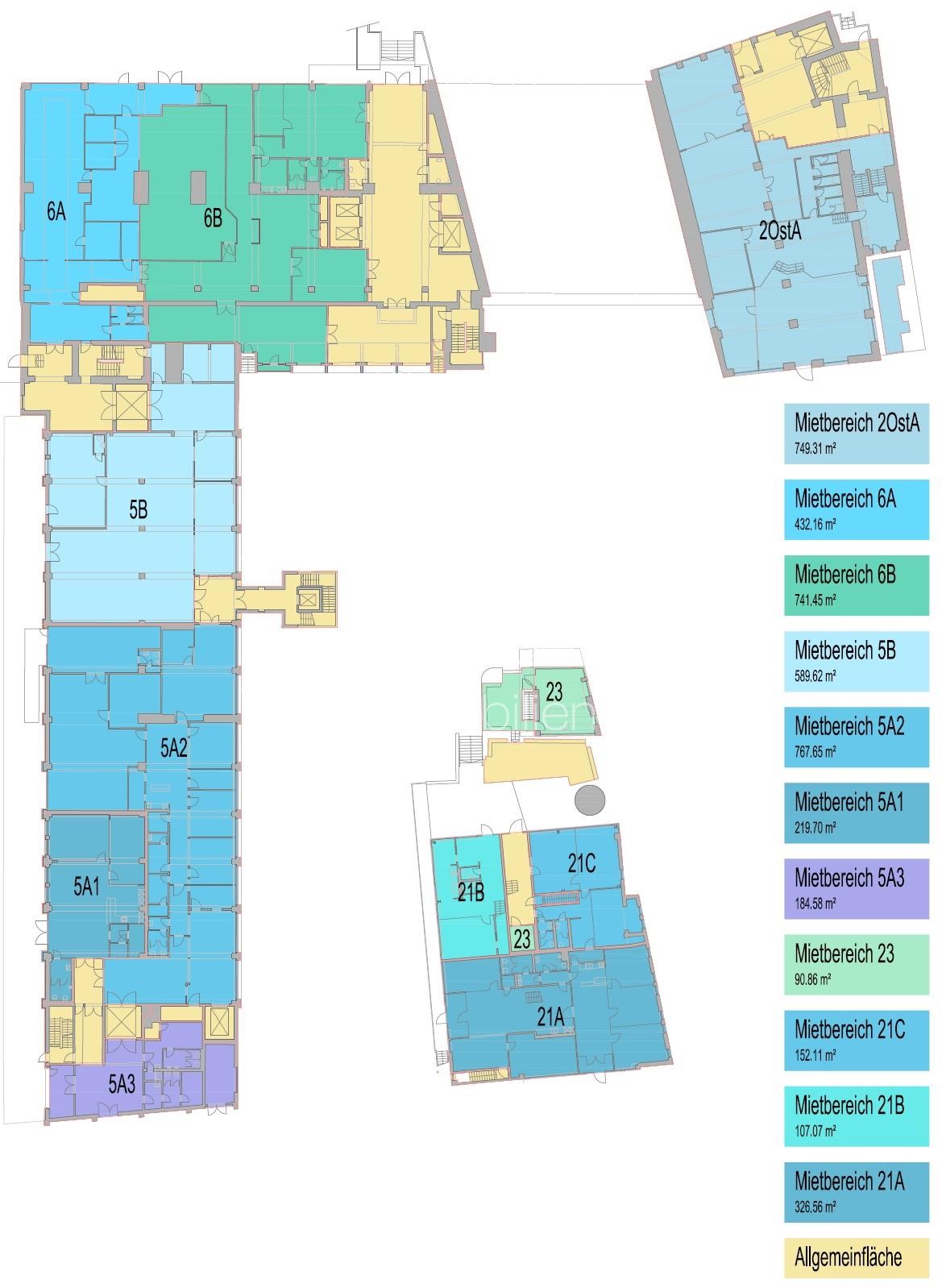
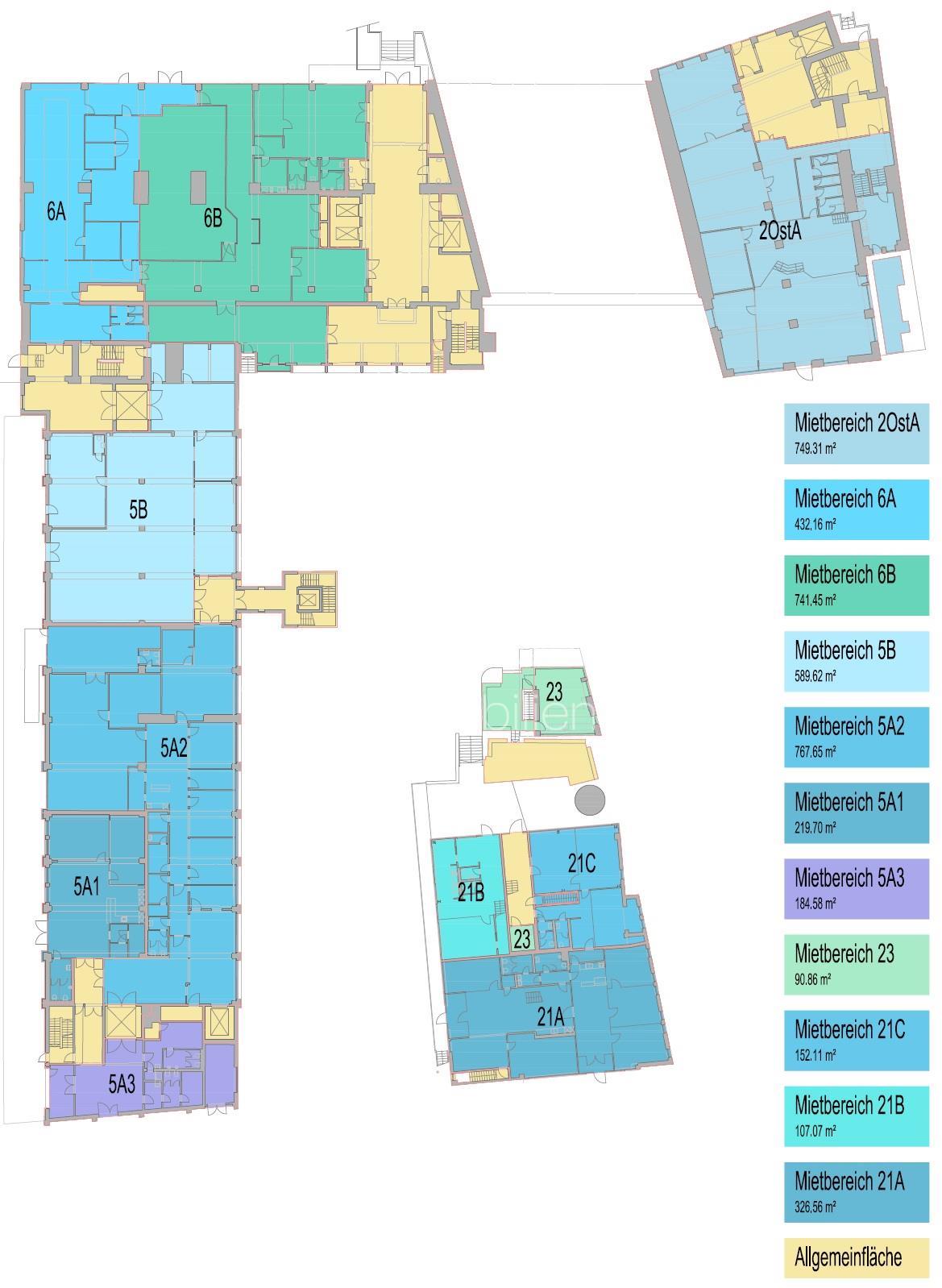
Erdgeschoss
Zwischengeschoss
1. Obergeschoss
2. Obergeschoss
3. Obergeschoss
4. Obergeschoss
5. Obergeschoss
Außenansicht
Außenbereich
Außenansicht
Innenansicht (Fotograf)
Innenansicht (Fotograf)
Innenansicht (Fotograf)
Innenansicht MB10
Innenansicht MB 16
Innenansicht MB 17
Innenansicht (Fotograf)
Innenansicht (Fotograf)
Innenansicht MB 14
Erdgeschoss
Zwischengeschoss
1. Obergeschoss
2. Obergeschoss
3. Obergeschoss
4. Obergeschoss
5. Obergeschoss

Vom Atelier bis zum Büro – die WerkStadt macht's möglich

München

auf Anfrage
Preis
675
Fläche teilbar ab (m²)

Die "WerkStadt" in München-Sendling bietet flexible Flächen für unterschiedlichste Nutzungen – von Büros über Ateliers bis hin zu kreativen Werkstätten oder Eventlocations. Das Areal wurde 2011 umfassend revitalisiert und verbindet den Charme der ursprünglichen Industriearchitektur mit modernem Ausbau nach Mieterwunsch. Dank Raumhöhen bis zu 3,55 m und vielfältigen Grundrissmöglichkeiten entstehen hier maßgeschneiderte Arbeitswelten.


Eckdaten

OBJECT TYPE
Büro/Praxis
ORT
München
BÜRO- /PRAXIS­FLÄCHE IN M²
4.089
FLÄCHE TEILBAR AB (M²)
675
BAUJAHR
1960
PROVISION
provisionsfrei
OBJEKTNUMMER
EuG5484

LAGEKRITERIEN

ENTFERNUNG NÄCHSTER HAUPTBAHNHOF
5.1 KM
ENTFERNUNG NÄCHSTE AUTOBAHN
4.1 KM
ENTFERNUNG NÄCHSTER FLUGHAFEN
39.9 KM
ENTFERNUNG NÄCHSTER BAHNHOF
1.9 KM
Ausstattung / Objektdetails
  • vielseitige Nutzungsmöglichkeiten: Büro, Atelier, Werkstatt, Event
  • komplette Revitalisierung 2011
  • Raumhöhen: 3,00 – 3,55 m
  • Sonnenschutzverglasung (teilweise)
  • Ausbau nach Mieterwunsch
  • Lastenaufzüge bis 5 t Traglast
  • Personenaufzug vorhanden
  • EDV-Verkabelung über Hohlraumboden
  • Kühlung (teilweise)
  • zusätzliche Lagerflächen (10 – 300 m² verfügbar)
  • Stellplätze in der Tiefgarage (auf Anfrage)
  • eigenes WerkCafé am Gelände
Please allow cookies,
to display a map from Google Maps.

Contact

SPEAK TO US!

This might also be of interest to you

Find Your Personal Property
Simple, fast and discrete – our property search