E & G IMMOBILIEN > COMMERCIAL PROPERTY > Exklusive Büroflächen im MILANEO
Titel
Innenhof
Büro
Büro
Büro
Büro klein
Büro
Besprechung
Küche
Küche
Eingang
Teeküche
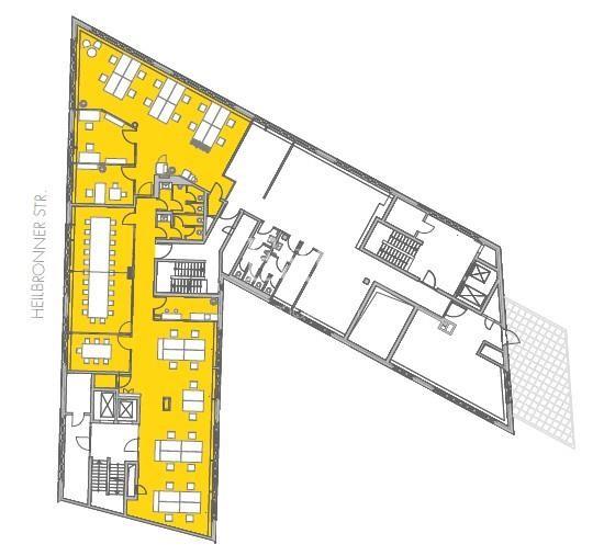
2. Obergeschoss
3. Obergeschoss
4. Obergeschoss
6. Obergeschoss
Aussenansicht
Titel
Innenhof
Büro
Büro
Büro
Büro klein
Büro
Besprechung
Küche
Küche
Eingang
Teeküche
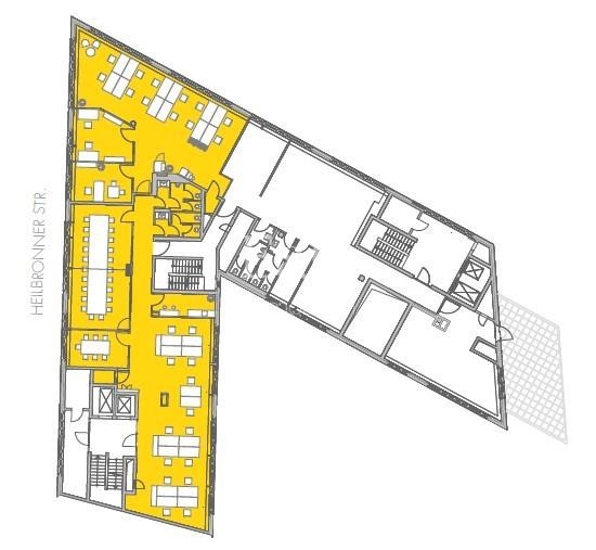
2. Obergeschoss
3. Obergeschoss
4. Obergeschoss
6. Obergeschoss
Aussenansicht

Exklusive Büroflächen im MILANEO

Stuttgart

24,50
Rent € per m²
292
Fläche teilbar ab (m²)

Das Stadtquartier MILANEO ist nur wenige Gehminuten vom Stuttgarter Hauptbahnhof entfernt. Die Nähe zur Bundesstraße B 27 ist als weiterer Pluspunkt zu zählen. Der Mailänder Platz, mit seinem südländischen Flair, bietet mit seinem vielfältigen Gastronomie- und Einzelhandelsangebot alle Möglichkeiten zur Deckung des täglichen Bedarfs. 2. OG, MF 2.03: ca. 511 m² 2. OG, MF 2.01+2.02: ca. 652 m² 3. OG, MF 3.01: ca. 292 m² 4. OG, MF 4.01.+4.02+4.03: ca. 1.193 m² 6. OG, MF 6.01: ca. 496 m²


Eckdaten

OBJECT TYPE
Büro/Praxis
ORT
Stuttgart
BÜRO- /PRAXIS­FLÄCHE IN M²
3.144
FLÄCHE TEILBAR AB (M²)
292
BAUJAHR
2015
PROVISION
provisionsfrei
OBJEKTNUMMER
EuG6352

LAGEKRITERIEN

ENTFERNUNG NÄCHSTER HAUPTBAHNHOF
1.1 KM
ENTFERNUNG NÄCHSTE AUTOBAHN
12 KM
ENTFERNUNG NÄCHSTER FLUGHAFEN
15 KM
Ausstattung / Objektdetails

Die Bürofläche bietet eine hochwertige und großzügige Ausstattung:

  • Hochwertige Architektur
  • Exklusive Natursteinfassade
  • Hohlraumböden
  • Außenliegendes, automatisches Sonnenschutzsystem
  • Teeküche
  • Moderne WC-Anlagen
  • Mehrgeschossige Tiefgarage mit direktem Zugang zu den Büroflächen
Please allow cookies,
to display a map from Google Maps.

Contact

SPEAK TO US!

This might also be of interest to you

Find Your Personal Property
Simple, fast and discrete – our property search