E & G IMMOBILIEN > COMMERCIAL PROPERTY > Einzigartiges Büropenthouse am Feuersee
Außenansicht
Büro
Büro
Grundriss 5.OG
Zugang
Außenansicht
Büro
Büro
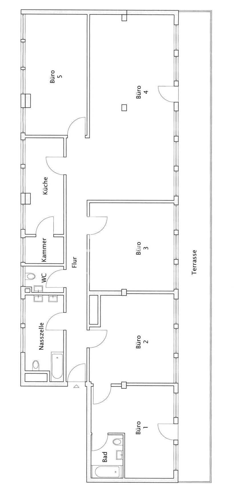
Grundriss 5.OG
Zugang

Einzigartiges Büropenthouse am Feuersee

Stuttgart

15,00
Rent € per m²
197
Fläche teilbar ab (m²)

Die Fläche befindet sich im 5. Obergeschoss eines repräsentativen Gebäudes in der Nähe des Feuersees. Das Highlight der Fläche ist eine über die gesamte Länge gezogene Dachterrasse. Die verzimmerte Struktur kann auf Wunsch auch in ein offenes Konzept umgewandelt werden. Verfügbar ab sofort.


Eckdaten

OBJECT TYPE
Büro/Praxis
ORT
Stuttgart
BÜRO- /PRAXIS­FLÄCHE IN M²
197
FLÄCHE TEILBAR AB (M²)
197
BAUJAHR
1957
PROVISION
provisionsfrei
OBJEKTNUMMER
EuG10030

LAGEKRITERIEN

ENTFERNUNG NÄCHSTE AUTOBAHN
9.7 KM
ENTFERNUNG NÄCHSTER FLUGHAFEN
12.9 KM
Please allow cookies,
to display a map from Google Maps.

Contact

SPEAK TO US!

This might also be of interest to you

Find Your Personal Property
Simple, fast and discrete – our property search