E & G IMMOBILIEN > COMMERCIAL PROPERTY > Effiziente und flexible Büroflächen nahe dem Breuningerland
Außenansicht
Foyer 1. OG
Büro
Teeküche
Musterbüro
Flur 1. OG
Musterbüro
Büro
Umkleide
Flur
1. Obergeschoss
2. Obergeschoss
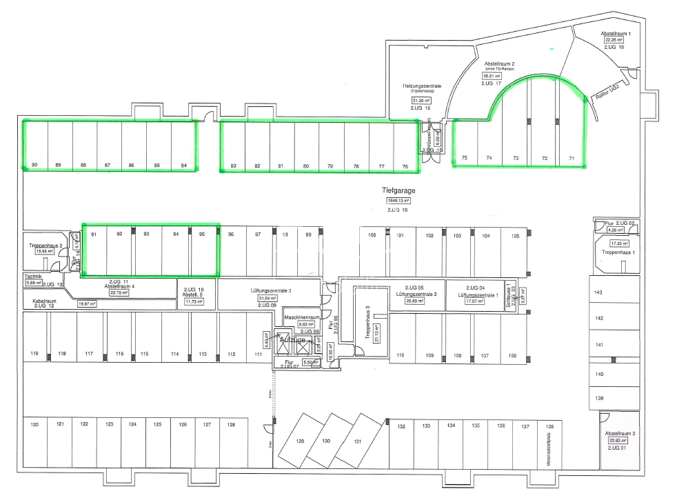
Tiefgarage Stellplätze
Außenansicht
Foyer 1. OG
Büro
Teeküche
Musterbüro
Flur 1. OG
Musterbüro
Büro
Umkleide
Flur
1. Obergeschoss
2. Obergeschoss
Tiefgarage Stellplätze

Effiziente und flexible Büroflächen nahe dem Breuningerland

Sindelfingen

12,90
Rent € per m²
300
Fläche teilbar ab (m²)

Das funktionale Bürogebäude beeindruckt mit einer markanten Außenwirkung und einem großzügigen Eingangsbereich, der direkten Zugang zu den Büroetagen über Aufzüge bietet. Die Außenanlagen wurden 2019 neu gestaltet. Die zur Vermietung stehenden Büroflächen werden mit neuem Bodenbelag renoviert und können flexibel an die Bedürfnisse der Mieter angepasst werden, etwa durch die Änderung von Wandstellungen oder umfangreiche Anpassungen wie Klimatisierung und Glastrennwände, die bei der Mietpreisfindung berücksichtigt werden. Durch zwei Lichthöfe sind alle Flächen gut belichtet. Die Datenverkabelung erfolgt über Brüstungskabelkanäle, und das Gebäude ist ans Glasfasernetz angeschlossen. Im 2. Untergeschoss stehen ausreichend Stellplätze zur Verfügung. Das Bürogebäude befindet sich im begehrten Gewerbegebiet Sindelfingen-Mahdental und profitiert von einer hervorragenden Verkehrsanbindung durch die Nähe zur A81 und der geplanten neuen BAB-Ausfahrt. Auch öffentliche Verkehrsmittel sind in fußläufiger Entfernung. Im Objekt aktuell verfügbare Flächen: 1. OG (EH1) - 1.005 m² 1. OG (EH2) - 666 m² (teilbar ab 300 m²) 2. OG (EH1) - 544 m² (teilbar ab 300 m²) 2. OG (EH2) - 521 m² (teilbar ab 300 m²)


Eckdaten

OBJECT TYPE
Büro/Praxis
ORT
Sindelfingen
BÜRO- /PRAXIS­FLÄCHE IN M²
2.736
FLÄCHE TEILBAR AB (M²)
300
BAUJAHR
1989
PROVISION
provisionsfrei
OBJEKTNUMMER
EuG10273

LAGEKRITERIEN

ENTFERNUNG NÄCHSTER HAUPTBAHNHOF
18.5 KM
ENTFERNUNG NÄCHSTE AUTOBAHN
2 KM
ENTFERNUNG ZUM ZENTRUM
3.4 KM
ENTFERNUNG NÄCHSTER FLUGHAFEN
16.8 KM
Ausstattung / Objektdetails

Die Fläche verfügt über eine hochwertige Ausstattung:

  • Großzügiger Eingangsbereich
  • Neuer Bodenbelag
  • Änderungen in der Raumstruktur sind möglich
  • Ausreichend Stellplätze vorhanden
  • Aufteilung der Flächen im 2. OG möglich (2 Einheiten)
  • Fernwärme-Anschluss NEU
Please allow cookies,
to display a map from Google Maps.

Contact

SPEAK TO US!

This might also be of interest to you

Find Your Personal Property
Simple, fast and discrete – our property search