E & G IMMOBILIEN > COMMERCIAL PROPERTY > Erstbezug nach Sanierung - Top Bürofläche in Bahnhofnähe
Außenansicht
Büro
Büro
Büro
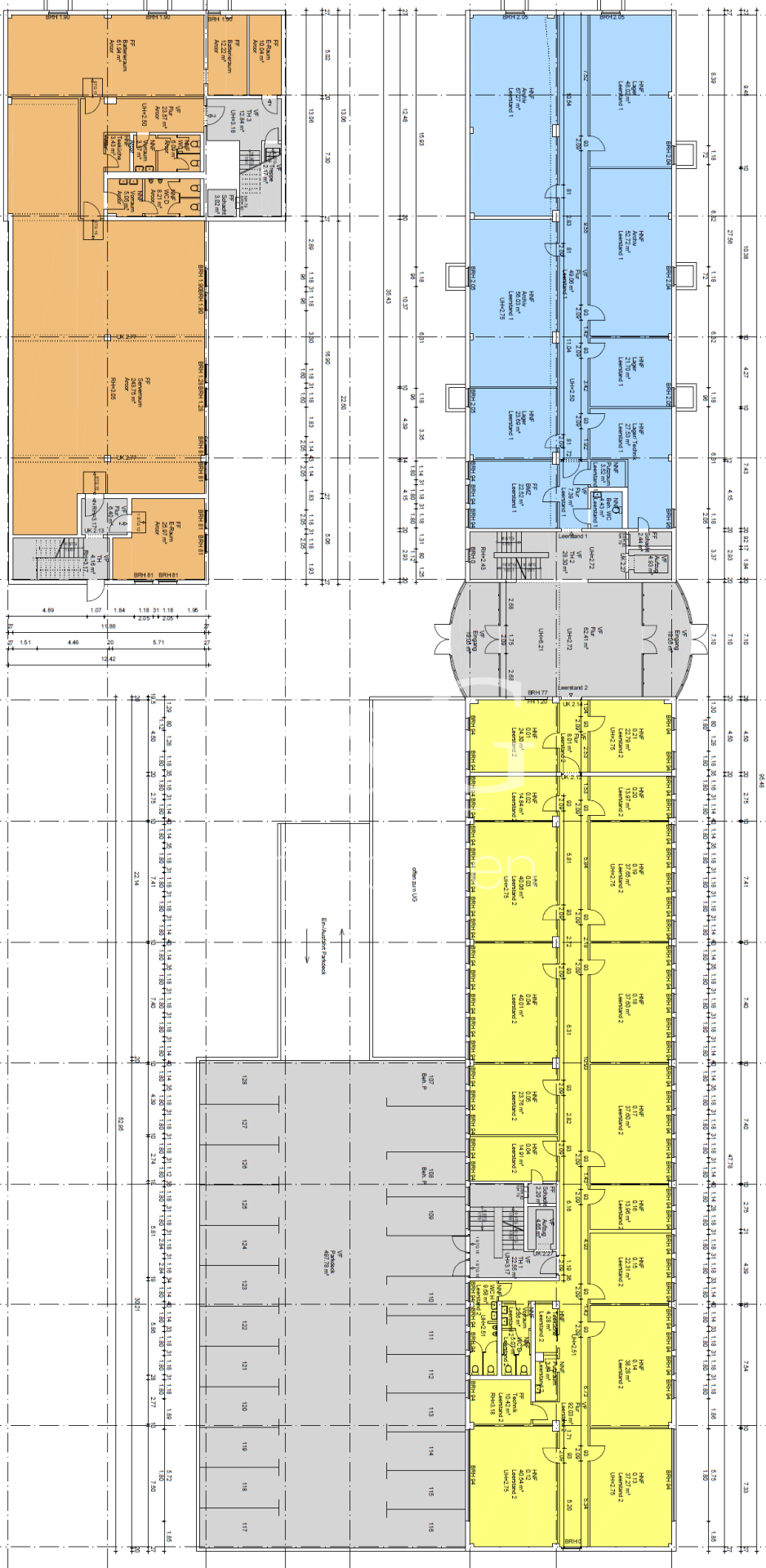
Erdgeschoss
1. Obergeschoss
Außenansicht
Außenansicht
Büro
Büro
Büro
Erdgeschoss
1. Obergeschoss
Außenansicht

Erstbezug nach Sanierung - Top Bürofläche in Bahnhofnähe

Ludwigsburg

auf Anfrage
Preis
433
Fläche teilbar ab (m²)

Das sieben-geschossige Gebäude in der Elmar-Doch-Straße 38 in 71638 Ludwigsburg wurde 1994 errichtet und überzeugt durch die zentrale Lage in Bahnhofsnähe, einer hohen Flexibilität mit vielfältigen Nutzungskonzepten und einem großzügigen Eingangs- und Foyerbereich. Zur Verfügung stehen flexibel gestaltbare Flächen zwischen ca. 250 m² und 1.250 m², verteilt auf zwei Etagen, die vielfältige Nutzungskonzepte ermöglichen. Im Gebäude werden ein hochwertiges Gastronomiekonzept sowie ein Hotel mit rund 200 Zimmern angesiedelt, die für eine attraktive Mieter- und Standortstruktur sorgen. Zur nachhaltigen Aufwertung sind umfassende Maßnahmen geplant, darunter der Anschluss an Fernwärme, Mieterstrom über Photovoltaik, ein Parkraummanagement, ein E-Ladepark sowie die Sanierung von Fassade, Aufzügen und Eingangsbereichen.


Eckdaten

OBJECT TYPE
Büro/Praxis
ORT
Ludwigsburg
BÜRO- /PRAXIS­FLÄCHE IN M²
2.801
FLÄCHE TEILBAR AB (M²)
433
BAUJAHR
1994
PROVISION
provisionsfrei
OBJEKTNUMMER
EuG11540

LAGEKRITERIEN

ENTFERNUNG NÄCHSTE AUTOBAHN
4.2 KM
ENTFERNUNG NÄCHSTER FLUGHAFEN
28.4 KM
Ausstattung / Objektdetails
  • Hochwertiger Mietermix (Hotel / Gastro / Fitness)
  • Abgehängte Rasterdecke
  • BAP-gerechte Beleuchtung
  • Be- und Entlüftung
  • Getrennte WC-Einheiten
  • Bodentanks und Fensterbankkanäle
  • Teppichboden
  • Personenaufzug
  • Außenliegender Sonnenschutz
  • Ausreichend Stellplätze (Außenbereich/Parkdeck)
Please allow cookies,
to display a map from Google Maps.

Contact

SPEAK TO US!

This might also be of interest to you

Find Your Personal Property
Simple, fast and discrete – our property search