T
+49 711 20702-700
E
gewerbe@eug.de
EN
|
DE
Residential Real Estate
Commercial Real Estate
Real Estate
Industrial & Logistics
Logistics Hall
storage area
Service
Office Letting
Industrial & Logistics
Investment
Research
Retail
Search order
Research
Office Market Stuttgart
Investment Market South Germany
Industrial & Logistics Market Stuttgart
Office & Investment Market Munich
Object
About E & G Real Estate
Our Values
Our Service
Our History
Team
Our Locations
Stuttgart
Munich
German Property Partners
Contact
Track Record
Stuttgart | Office Letting
Stuttgart | Investment
Stuttgart | Industrial & Logistics
Munich | Office Letting
Munich | Investment
Latest News
Press News
Market Reports
Research
ENGLISH
DEUTSCH
×
+49 711 20702-800
Zum Direktkontakt
Rufen Sie uns jederzeit an
Exposé-Anfragen
Fordern Sie jetzt die spezifischen Objektunterlagen an
Mr
Ms
Not specified
* this is a required field
I have read the
Data Protection
.
Send
E & G IMMOBILIEN
>
COMMERCIAL PROPERTY
>
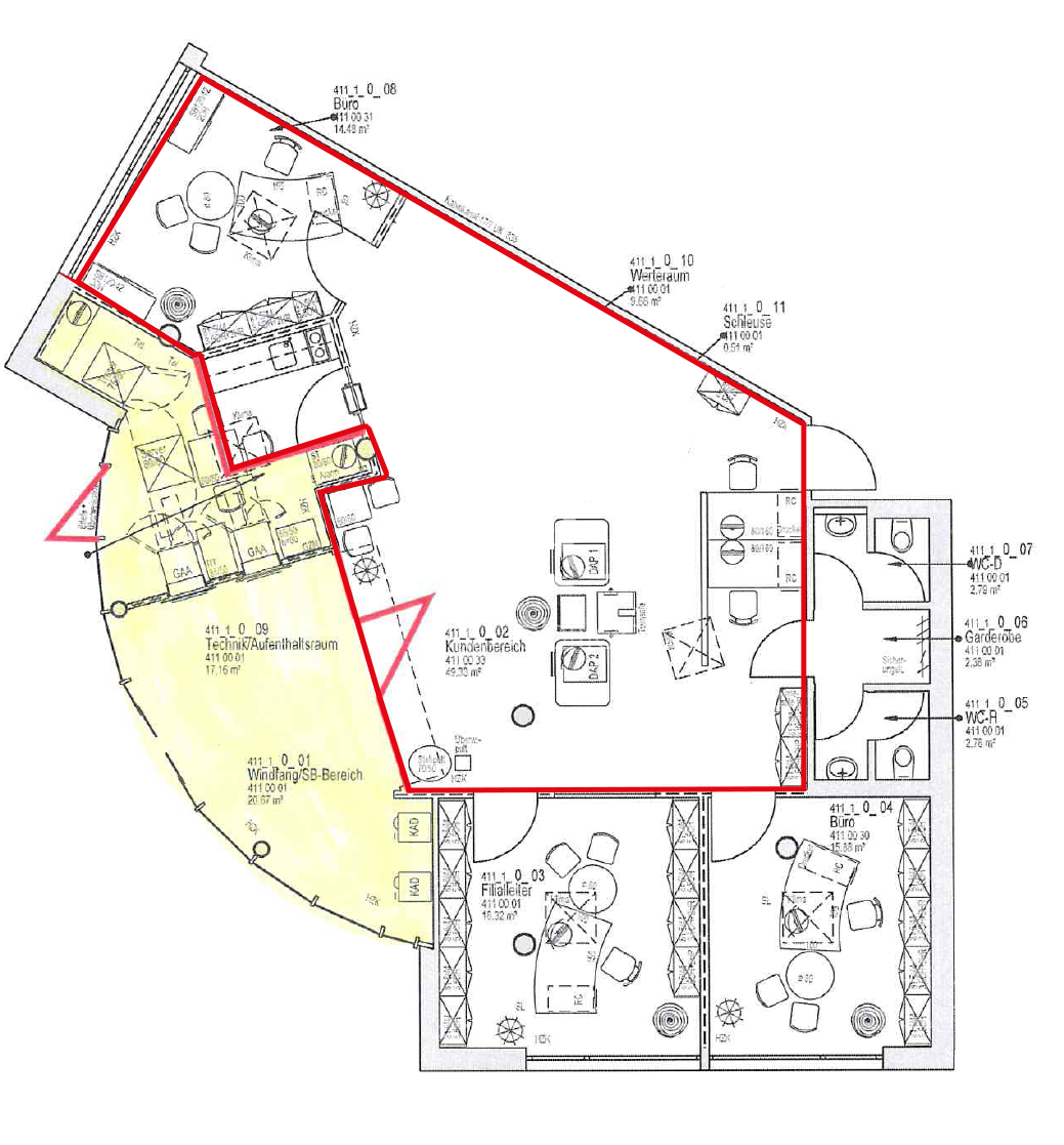
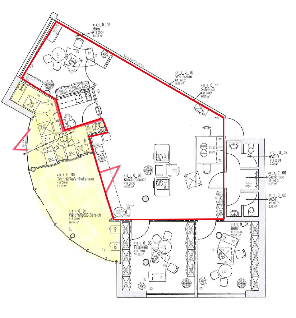
Bürofläche am BÄRLE-ECK
Previous
Object
Next
Object
Bürofläche am BÄRLE-ECK
Sindelfingen
10,00
Rent € per m²
120
Fläche teilbar ab (m²)
Im Objekt aktuell verfügbare Flächen: EG - 120 m²
Eckdaten
OBJECT TYPE
Büro/Praxis
ORT
Sindelfingen
BÜRO- /PRAXISFLÄCHE IN M²
120
FLÄCHE TEILBAR AB (M²)
120
PROVISION
Dieses Angebot ist provisionspflichtig
OBJEKTNUMMER
EuG11773
LAGEKRITERIEN
ENTFERNUNG NÄCHSTER HAUPTBAHNHOF
19.1 KM
ENTFERNUNG NÄCHSTE AUTOBAHN
3.1 KM
ENTFERNUNG NÄCHSTER FLUGHAFEN
18 KM
ENTFERNUNG NÄCHSTE BUSHALTESTELLE
0.01 KM
Ausstattung / Objektdetails
–
2 separate Eingänge
–
4 separate Büroräume
–
Gut frequentierte Lage!
–
2 Kurzzeitparkplätze
–
Abgehängte Decke
–
Eingangs-Rolltor
–
NK nach Verbrauch
–
Glastrennwände
Please allow cookies,
to display a map from Google Maps.
Show Cookie Popup
Contact
SPEAK TO US!
Hans-Werner Petrak
Your contact to us
+49 7031 734468-6
hans-werner.petrak@eug.de
Request Exposé
This might also be of interest to you
Leonberg
Gut erreichbare und repräsentative Büroeinheit im Octogon
10,00
Rent € per m²
1.187
Office / practice space in m²
Leonberg
Gut erreichbare und repräsentative Büroeinheit im Octogon
Stuttgart
Repräsentative Bürofläche in zentraler Innenstadt
20,00
Rent € per m²
296
Office / practice space in m²
Stuttgart
Repräsentative Bürofläche in zentraler Innenstadt
Stuttgart
Büroflächen in zentraler Lage, Nähe Hauptbahnhof
16,00
Rent € per m²
1.920
Office / practice space in m²
Stuttgart
Büroflächen in zentraler Lage, Nähe Hauptbahnhof
Weil der Stadt
Schönes denkmalgeschütztes Haus am Marktplatz
11,50
Rent € per m²
315
Office / practice space in m²
Weil der Stadt
Schönes denkmalgeschütztes Haus am Marktplatz
Weissach
IM ALLEINAUFTRAG - Hochwertige Werkstatt- und Büroflächen
12,00
Rent € per m²
1.039
Office / practice space in m²
3.767
Total area in circa m²
Weissach
IM ALLEINAUFTRAG - Hochwertige Werkstatt- und Büroflächen
Find Your Personal Property
Simple, fast and discrete – our property search
SEARCH
RESIDENTIAL PROPERTY
COMMERCIAL PROPERTY
ABOUT US
CONTACT
E & G Real Estate GmbH
Börsenplatz 1
70174 Stuttgart
T
+49 711 20702-700
For owners
Office letting
Our services
Launch your property
For developers
Industrial & logistics
Our team
Locations
Property search
Investment
News
Property listings
Research
German Property Partners
Retail
© 2026 - E & G Real Estate GmbH
Imprint
|
Data Protection
|
Terms and Conditions
×
E & G News
Keep abreast of developments!
Mr
Ms
Not specified
* this is a required field
I have read the
Data Protection
.
Subscribe now
×
Market Reports
Receive our market reports by mail in the future.
Mr
Ms
Not specified
Publications
Büromarktbericht Stuttgart
Investmentmarktbericht Stuttgart
Industrie- & Logistikmarktbericht Stuttgart
Büro- und Investmentmarktbericht München
Top 7 Standorte Industrie- & Logistikmarktbericht
Top 7 Standorte Büro-/Investmentmarktbericht
* this is a required field
I have read the
Data Protection
.
Subscribe now
Thank You
Error
×