E & G IMMOBILIEN > COMMERCIAL PROPERTY > Repräsentatives Verwaltungsgebäude in Pflugfelden
Außenansicht
Büro
Büro
Büro
Büro
Büro
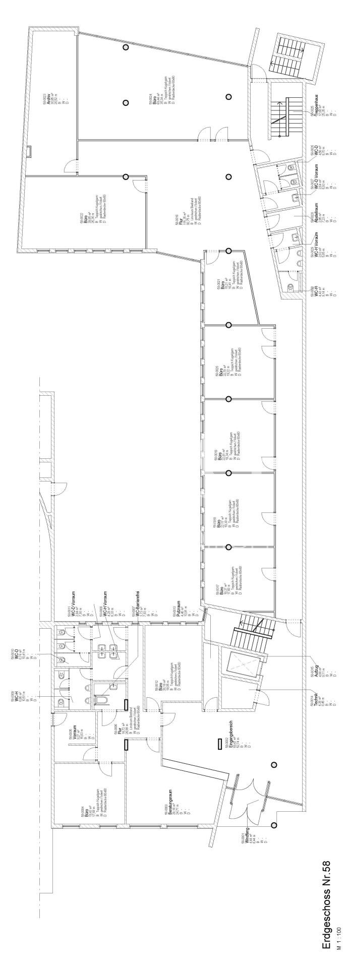
EG
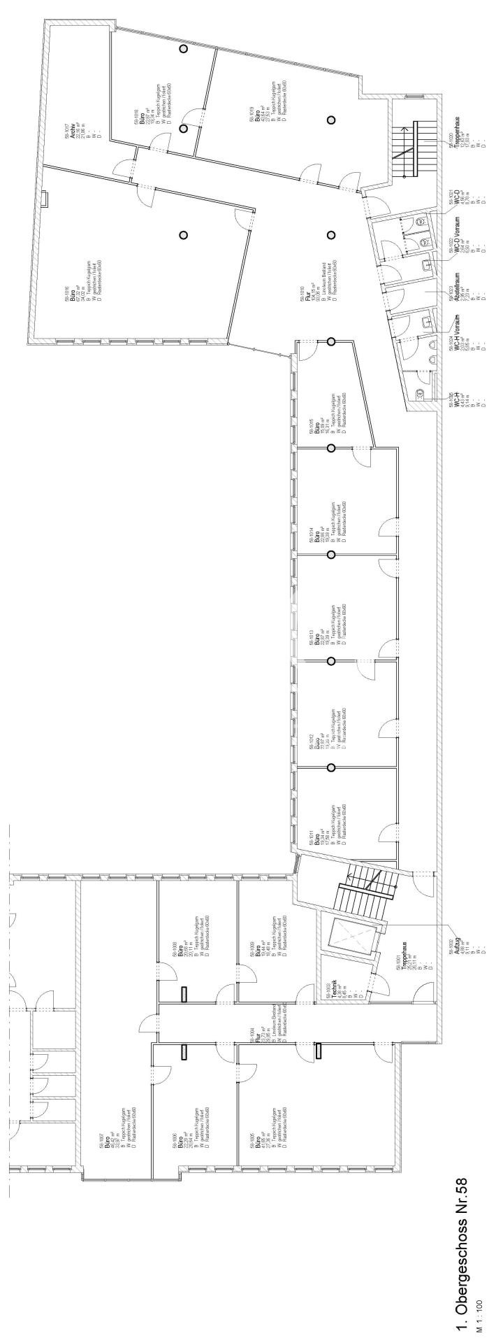
1.OG
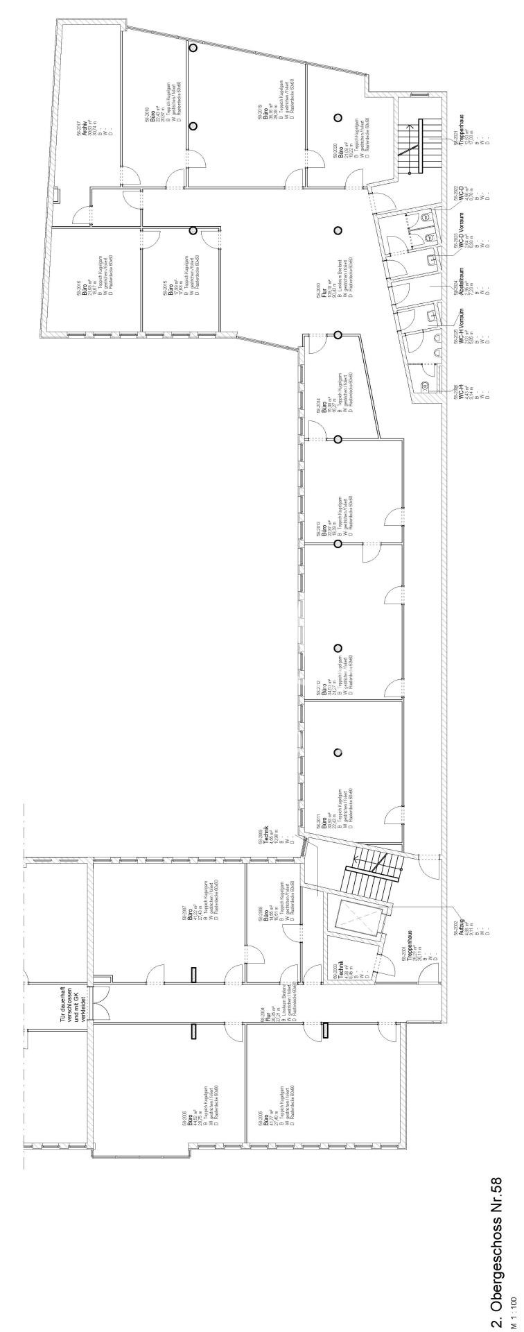
2. OG
3. OG
4. OG
Außenansicht
Außenansicht
Büro
Büro
Büro
Büro
Büro
EG
1.OG
2. OG
3. OG
4. OG
Außenansicht

Repräsentatives Verwaltungsgebäude in Pflugfelden

Ludwigsburg

11,00
Rent € per m²
435
Fläche teilbar ab (m²)

Der im Jahr 1992 erstellte Gebäudekomplex in der Schwieberdinger Straße 58-60 besteht aus zwei Gebäudeteilen. Der zur Vermietung stehende Gebäudeabschnitt in der Schwieberdinger Straße 58 ist bislang von einer bundesweit tätigen Krankenkasse genutzt und wird zum 01.01.2026 verfügbar. Das Gebäude wurde im Jahr 2020 energetisch ertüchtigt und die Fassade neu gestrichen. Da es bislang vollständig von einem Nutzer angemietet ist, sind die Voraussetzungen für einen neuen Single-Tenant-Nutzer prädestiniert. Über 5 Etagen lassen sich sowohl klassische als auch moderne Arbeitswelten bestens abbilden. Im Objekt aktuell verfügbare Flächen: EG - 600,65 m² 1. OG - 601,04 m² 2. OG - 603,13 m² 3. OG - 601,76 m² 4. OG - 435,41 m²


Eckdaten

OBJECT TYPE
Büro/Praxis
ORT
Ludwigsburg
BÜRO- /PRAXIS­FLÄCHE IN M²
2.842
FLÄCHE TEILBAR AB (M²)
435
BAUJAHR
1992
PROVISION
provisionsfrei
OBJEKTNUMMER
EuG12000

LAGEKRITERIEN

ENTFERNUNG NÄCHSTER HAUPTBAHNHOF
1 KM
ENTFERNUNG NÄCHSTE AUTOBAHN
3 KM
ENTFERNUNG NÄCHSTER FLUGHAFEN
38 KM
Ausstattung / Objektdetails

Das Objekt ist wie folgt ausgestattet:

  • Linoleumboden
  • Personenaufzug
  • Deckenrasterleuchten
  • Kat 5-Verkabelung über Bodentanks
  • Innenhof
  • Dachterrasse
  • Systemtrennwände
  • Etagenweise getrennte Sanitärbereiche
Please allow cookies,
to display a map from Google Maps.

Contact

SPEAK TO US!

This might also be of interest to you

Find Your Personal Property
Simple, fast and discrete – our property search