E & G IMMOBILIEN > COMMERCIAL PROPERTY > FLEXIBLE BÜROFLÄCHEN IM STEP 9
Außenansicht
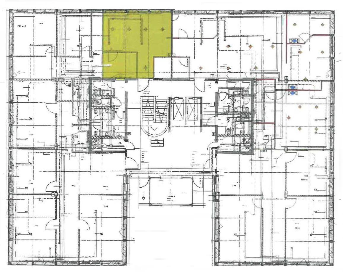
Erdgeschoss
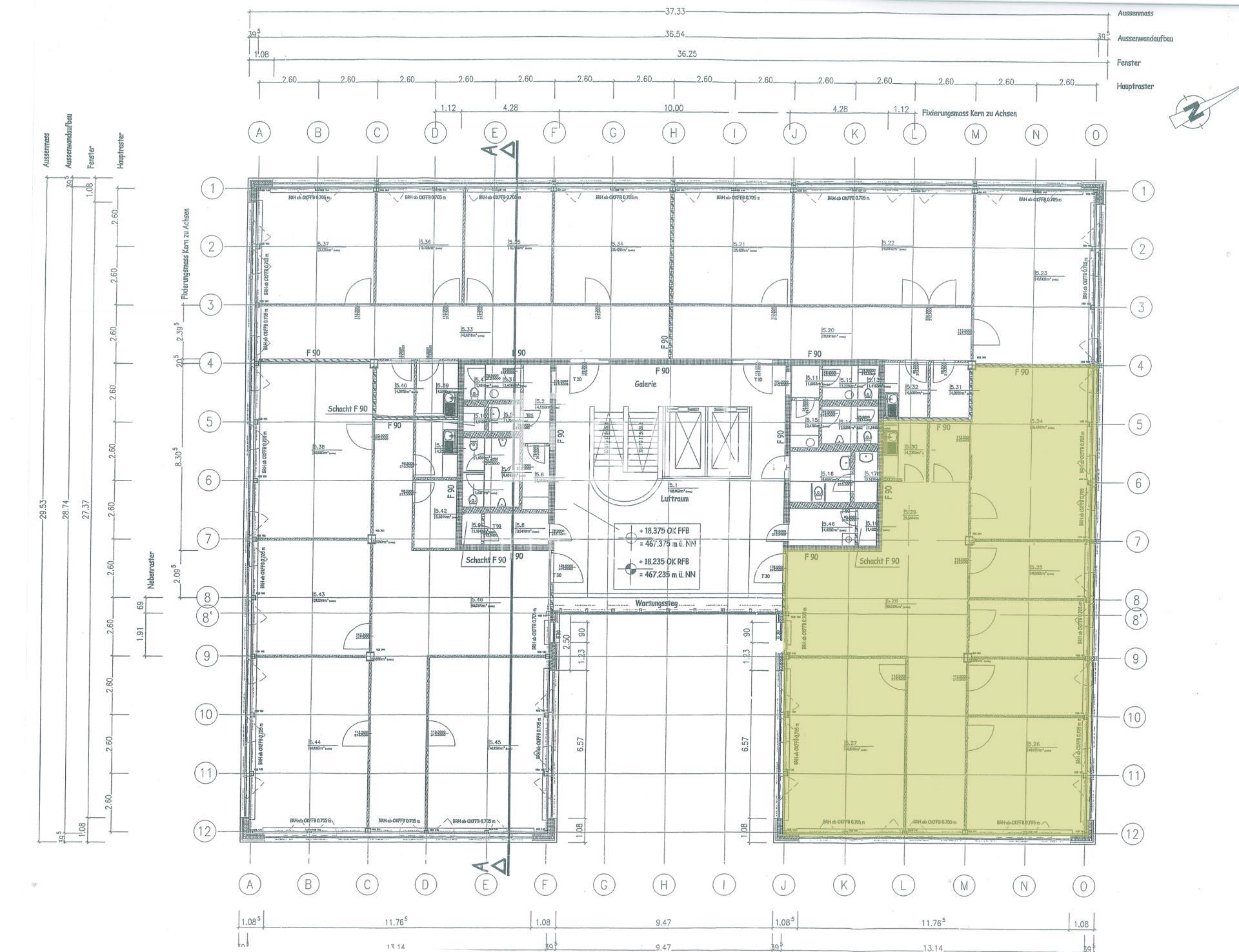
STEP 9 - 5. OG
Außenansicht
Erdgeschoss
STEP 9 - 5. OG

FLEXIBLE BÜROFLÄCHEN IM STEP 9

Stuttgart

16,50
Rent € per m²
61
Fläche teilbar ab (m²)

Der STEP Stuttgarter Engineering Park befindet sich an einem erstklassigen Standort im Südwesten der Landeshauptstadt Stuttgart, Ortsteil Stuttgart-Vaihingen, und verfügt über ideale Verkehrsanbindungen.  Die S-Bahnhaltestelle Österfeld grenzt unmittelbar an das STEP Areal und wird von der S-Bahn direkt angefahren. Die angrenzende B 14 führt direkt in die Stuttgarter Innenstadt. Ein direkter Autobahnanschluss an die A 831, von wo es nur wenige Kilometer bis zum Autobahnkreuz Stuttgart sind, ist ebenfalls vorhanden.


Eckdaten

OBJECT TYPE
Büro/Praxis
ORT
Stuttgart
BÜRO- /PRAXIS­FLÄCHE IN M²
322
FLÄCHE TEILBAR AB (M²)
61
BAUJAHR
2003
PROVISION
provisionsfrei
OBJEKTNUMMER
EuG1765

LAGEKRITERIEN

ENTFERNUNG NÄCHSTER HAUPTBAHNHOF
10.5 KM
ENTFERNUNG NÄCHSTE AUTOBAHN
1.8 KM
ENTFERNUNG NÄCHSTER FLUGHAFEN
10.4 KM
ENTFERNUNG NÄCHSTE BUSHALTESTELLE
0.35 KM
ENTFERNUNG NÄCHSTER BAHNHOF
1 KM
Ausstattung / Objektdetails

Die Flächen verfügen über eine moderne Ausstattung:

  • Kantine, Bistro, Konferenzbereich und Fitnessstudio auf dem Gelände
  • moderner und hochwertiger Bürostandard
  • Teilweise Kühlung vorhanden
  • Änderungen der Raumaufteilung sind möglich

hauseigene Tiefgarage

Please allow cookies,
to display a map from Google Maps.

Contact

SPEAK TO US!

This might also be of interest to you

Find Your Personal Property
Simple, fast and discrete – our property search