E & G IMMOBILIEN > COMMERCIAL PROPERTY > Moderne Büroflächen am Pragfriedhof
Titelbild
DSC_0029
DSC_0027
Eingangshalle
Eingangshalle2
Flur
Büro1
Büro2
Teeküche
Seminarraum
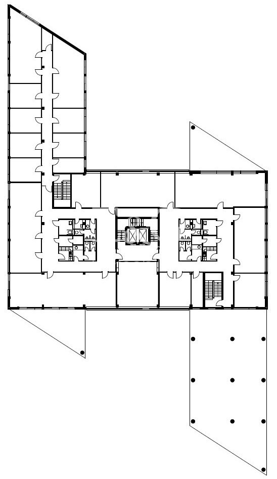
3. + 4. OG
5. OG
IM004984
Titelbild
DSC_0029
DSC_0027
Eingangshalle
Eingangshalle2
Flur
Büro1
Büro2
Teeküche
Seminarraum
3. + 4. OG
5. OG
IM004984

Moderne Büroflächen am Pragfriedhof

Stuttgart

18,00
Rent € per m²
600
Fläche teilbar ab (m²)

Das zur Vermietung stehende Bürogebäude FOCUS 21 befindet sich in der Presselstraße, unweit von der Heilbronner Straße in Stuttgart. Es überzeugt durch seine moderne Architektur mit einer ansprechenden Fassade und attraktiven Eingangshalle. Die Büroflächen verfügen über flexibel gestaltbare Grundrisse und bieten eine funktionale Arbeitsumgebung für verschiedene Unternehmenskonzepte - von Büro- über Praxis- bis hin zu Schulungsflächen. Durch die exzellente Anbindung an den öffentlichen Personennahverkehr mit einer Stadtbahn- und S-Bahnhaltestelle in unmittelbarer Nähe ist der Standort sowohl für Mitarbeiter als auch für Geschäftspartner schnell und bequem erreichbar.


Eckdaten

OBJECT TYPE
Büro/Praxis
ORT
Stuttgart
BÜRO- /PRAXIS­FLÄCHE IN M²
5.789
FLÄCHE TEILBAR AB (M²)
600
BAUJAHR
2002
PROVISION
provisionsfrei
OBJEKTNUMMER
EuG1767

LAGEKRITERIEN

ENTFERNUNG NÄCHSTER HAUPTBAHNHOF
3.2 KM
ENTFERNUNG NÄCHSTE AUTOBAHN
11 KM
ENTFERNUNG ZUM ZENTRUM
1.9 KM
ENTFERNUNG NÄCHSTER FLUGHAFEN
17.2 KM
Ausstattung / Objektdetails

Das Bürogebäude verfügt über folgende Ausstattung:

  • Außenliegender Sonnenschutz
  • Kühldecken
  • Hohlraumböden
  • Personenaufzug
  • Teppichboden
  • BAP - gerechte Beleuchtung
Please allow cookies,
to display a map from Google Maps.

Contact

SPEAK TO US!

This might also be of interest to you

Find Your Personal Property
Simple, fast and discrete – our property search