E & G IMMOBILIEN > COMMERCIAL PROPERTY > Zentral auf der Königstraße
Außenansicht
Innenansicht
Innenansicht
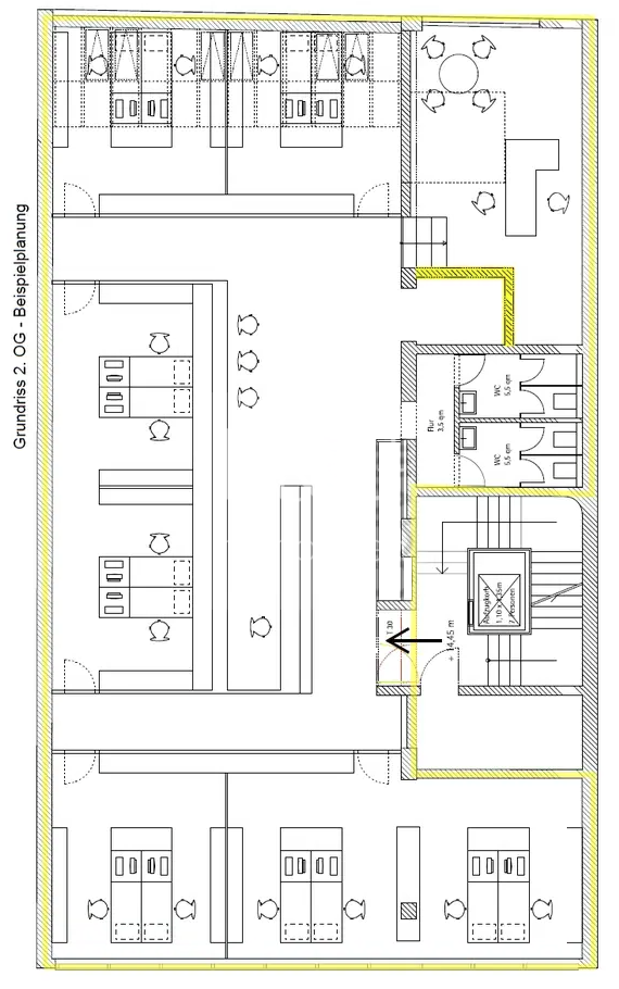
2.OG
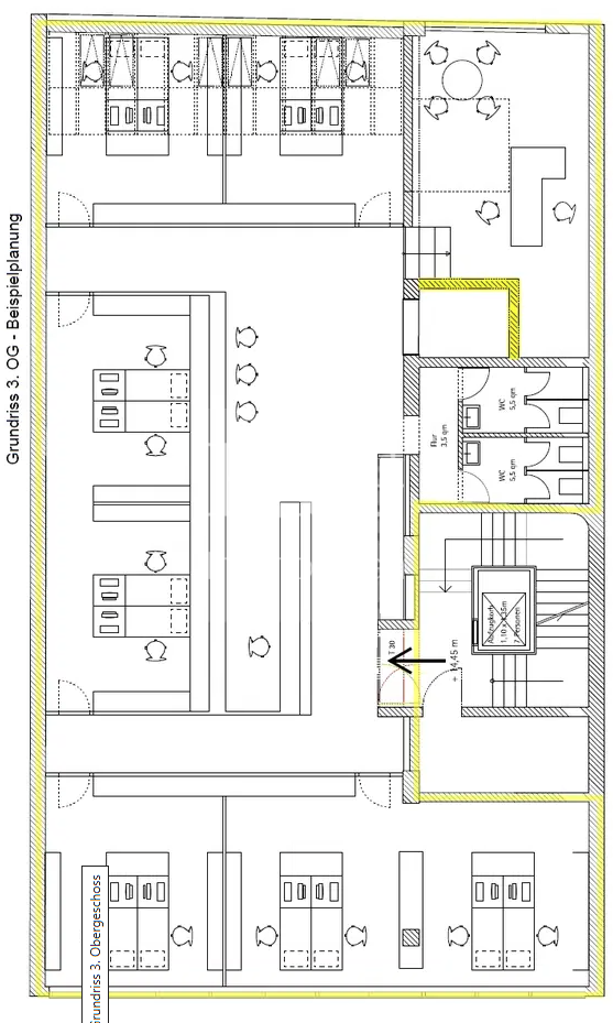
3.OG
Außenansicht
Innenansicht
Innenansicht
2.OG
3.OG

Zentral auf der Königstraße

Stuttgart

24,00
Rent € per m²
316
Fläche teilbar ab (m²)

Das siebengeschossige Büro- und Geschäftshaus wurde ursprünglich zwischen 1949 und 1959 erbaut und im Jahr 2012 umfassend modernisiert. Es überzeugt durch eine moderne Architektur, flexible Nutzungsmöglichkeiten und eine hochwertige Ausstattung. Die 2 Etagen mit jeweils ca. 316 m² und 317 m² bieten moderne mit flexibler Raumaufteilung – von Einzel- über Teambüros bis hin zu Open-Space-Lösungen.


Eckdaten

OBJECT TYPE
Büro/Praxis
ORT
Stuttgart
BÜRO- /PRAXIS­FLÄCHE IN M²
633
FLÄCHE TEILBAR AB (M²)
316
BAUJAHR
1953
PROVISION
provisionsfrei
OBJEKTNUMMER
EuG6680

LAGEKRITERIEN

ENTFERNUNG NÄCHSTER HAUPTBAHNHOF
1.1 KM
ENTFERNUNG NÄCHSTE AUTOBAHN
9.9 KM
ENTFERNUNG NÄCHSTER FLUGHAFEN
13.1 KM
Ausstattung / Objektdetails

Fenster mit Aluminiumprofilen und IsolierverglasungErstbezug nach Sanierung.Ausbau nach MieterwunschWC-Anlagen vollständig renoviertPersonenaufzugBodenbelag nach MieterwunschAußenliegender Sonnenschutz

Please allow cookies,
to display a map from Google Maps.

Contact

SPEAK TO US!

This might also be of interest to you

Find Your Personal Property
Simple, fast and discrete – our property search