E & G IMMOBILIEN > COMMERCIAL PROPERTY > MODERNISIERTE BÜROFLÄCHEN
Außenansicht
Büro
Büro
Büro
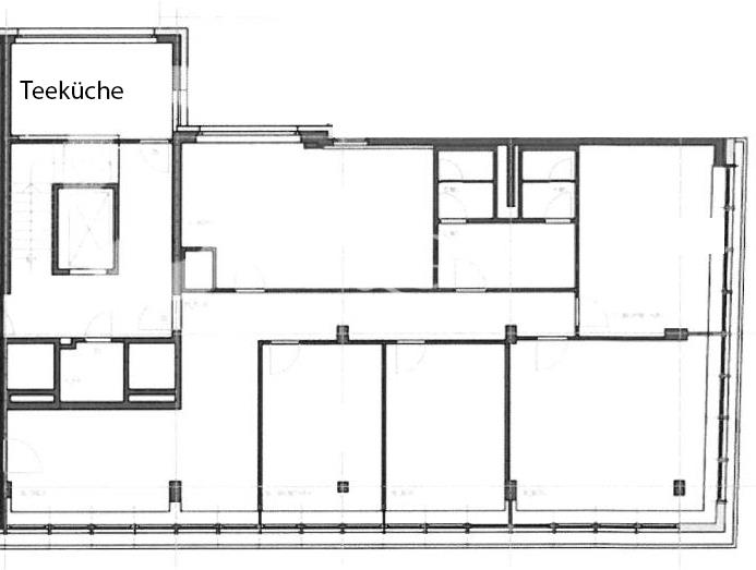
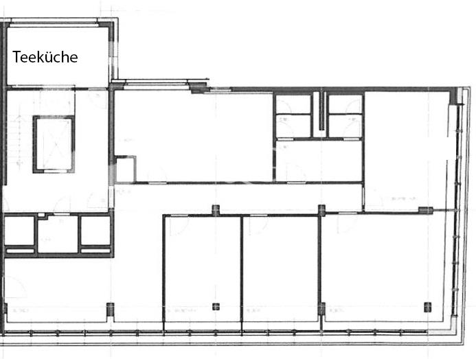
1.OG
Flur
Außenansicht
Büro
Büro
Büro
1.OG
Flur

MODERNISIERTE BÜROFLÄCHEN

Stuttgart

15,00
Rent € per m²
202
Fläche teilbar ab (m²)

Die zur Verfügung stehende Bürofläche befindet sich in einer der zentralsten Lagen Stuttgarts, in der Hospitalstraße. Durch die günstige Lage am City-Ring, können über die Bundesstraßen B 14 und B 27 die Außenbezirke Stuttgarts und die Autobahnen A 8 und A 81 erreicht werden. So sind der Stuttgarter Flughafen und die Messe bequem und problemlos erreichbar. Der Hauptbahnhof Stuttgart ist nur wenigen Minuten zu Fuß erreichbar. Dort fahren alle S-Bahn- und U-Bahnlinien, die Stuttgart mit dem Flughafen oder der Messe, mit Herrenberg, Plochingen, Schorndorf, Filderstadt oder Bietigheim verbindet. Zudem können viele deutsche und europäische Städte über die Züge der Deutschen Bahn erreicht werden.  Durch die Nähe zur Königstraße, die Haupteinkaufsstraße Stuttgarts, und zum Rotebühlplatz sind alle Läden zur Deckung des täglichen Bedarfs vorhanden. Zudem bietet auch das revitalisierte Hospitalviertel viele Möglichkeiten für die Mittagspause.


Eckdaten

OBJECT TYPE
Büro/Praxis
ORT
Stuttgart
BÜRO- /PRAXIS­FLÄCHE IN M²
202
FLÄCHE TEILBAR AB (M²)
202
BAUJAHR
1969
PROVISION
provisionsfrei
OBJEKTNUMMER
EuG6847

LAGEKRITERIEN

ENTFERNUNG NÄCHSTER HAUPTBAHNHOF
1.9 KM
ENTFERNUNG NÄCHSTE AUTOBAHN
10.7 KM
ENTFERNUNG NÄCHSTER FLUGHAFEN
13.5 KM
Ausstattung / Objektdetails

Die Bürofläche verfügt über eine großzügige Ausstattung:

  • Modernisierter Eingangsbereich
  • Neuwertige Fassade
  • Büroeinheit wurde umfangreich renoviert
  • Teeküche
  • Teppichboden
  • Außenliegender Sonnenschutz
  • EDV-Verkabelung
  • Deckenrasterleuchten
  • Innenliegender Blendschutz
Please allow cookies,
to display a map from Google Maps.

Contact

SPEAK TO US!

This might also be of interest to you

Find Your Personal Property
Simple, fast and discrete – our property search