E & G IMMOBILIEN > COMMERCIAL PROPERTY > Erstklassige Büroflächen im renomierten BülowCarré
Aussenansicht
Empfang
Büro
Eingang
Besprechung
Flur
Küche
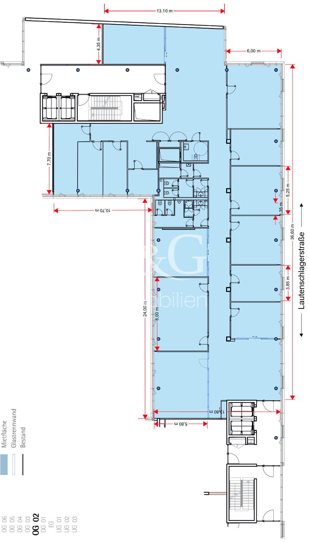
2. Obergeschoss_696 m²
Innenhof
Aussenansicht
Empfang
Büro
Eingang
Besprechung
Flur
Küche
2. Obergeschoss_696 m²
Innenhof

Erstklassige Büroflächen im renomierten BülowCarré

Stuttgart

29,20
Rent € per m²
696
Fläche teilbar ab (m²)

Das markante Gebäude beeindruckt mit seiner eindrucksvollen Fassadenstruktur und erstklassigen Lage im Herzen von Stuttgart. Der Standort bietet nicht nur einen modernen Arbeitsplatz, sondern auch kurze Wege zu den besten Restaurants und kulturellen Highlights der Stadt. In direkter Umgebung befinden sich der Schlossplatz, das Neue und Alte Schloss, das Kunstmuseum sowie der Königsbau, die das urbane Flair unterstreichen. Die Verkehrsanbindung ist hervorragend: Der Stuttgarter Hauptbahnhof liegt nur 500 Meter entfernt und ermöglicht mit S- und U-Bahn-Anbindungen eine schnelle Erreichbarkeit des Flughafens, der Messe sowie zahlreicher umliegender Städte. Zudem befindet sich die U-Bahnhaltestelle "Friedrichsbau" direkt gegenüber. Für den Individualverkehr bieten die nahegelegenen Autobahnen A81 und A8 eine optimale Anbindung in alle Richtungen. Diese zentrale Lage vereint Prestige, Komfort und erstklassige Erreichbarkeit in einem einzigartigen Arbeitsumfeld.


Eckdaten

OBJECT TYPE
Büro/Praxis
ORT
Stuttgart
BÜRO- /PRAXIS­FLÄCHE IN M²
696
FLÄCHE TEILBAR AB (M²)
696
PROVISION
provisionsfrei
OBJEKTNUMMER
EuG7604

LAGEKRITERIEN

ENTFERNUNG NÄCHSTE AUTOBAHN
12 KM
ENTFERNUNG NÄCHSTER FLUGHAFEN
14 KM
Ausstattung / Objektdetails

Die Fläche besticht durch eine hochmoderne Ausstattung:

  • Lichtdurchflutete Räumlichkeiten in Zellenstruktur
  • Geräumiger Empfang
  • Große Teeküche
  • Barrierefreier Zugang über Personenaufzug
  • LEED-Platinumzertifikat
  • Tiefgarage
  • Teppichboden
  • Personenaufzug
  • Bodentanks
  • Kat-7 Verkabelung
  • Außenliegender Sonnenschutz
Please allow cookies,
to display a map from Google Maps.

Contact

SPEAK TO US!

This might also be of interest to you

Find Your Personal Property
Simple, fast and discrete – our property search